- 価格
-
4490万円~5540万円
月々の支払い額を見る
- 専有面積
-
64.61㎡~69.07㎡
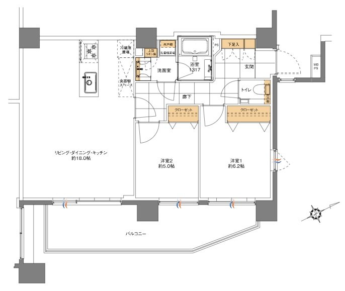
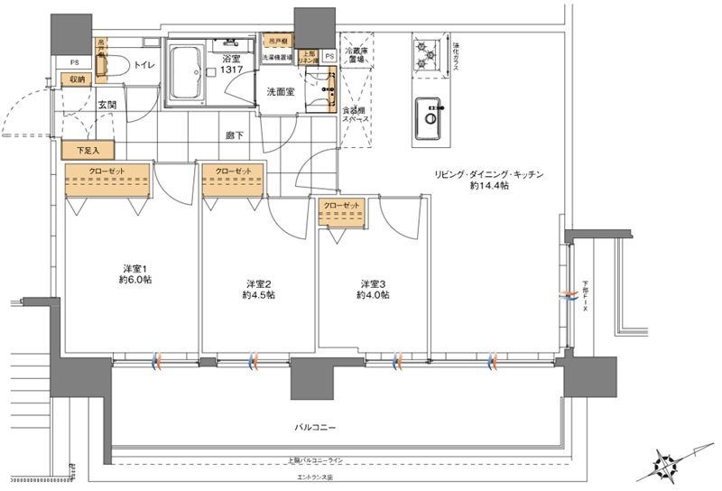
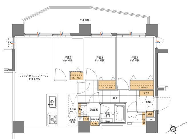
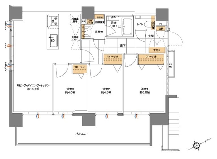
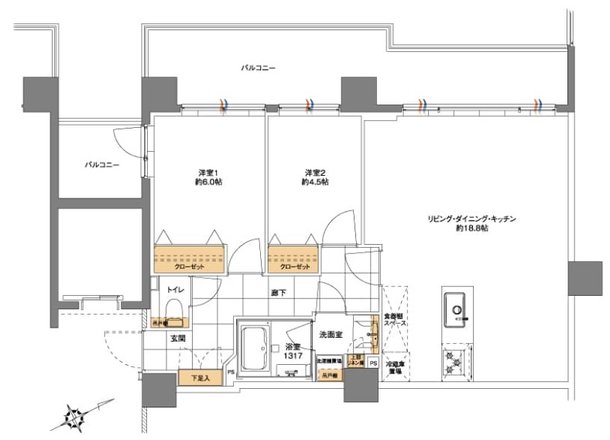
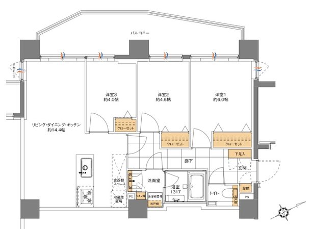
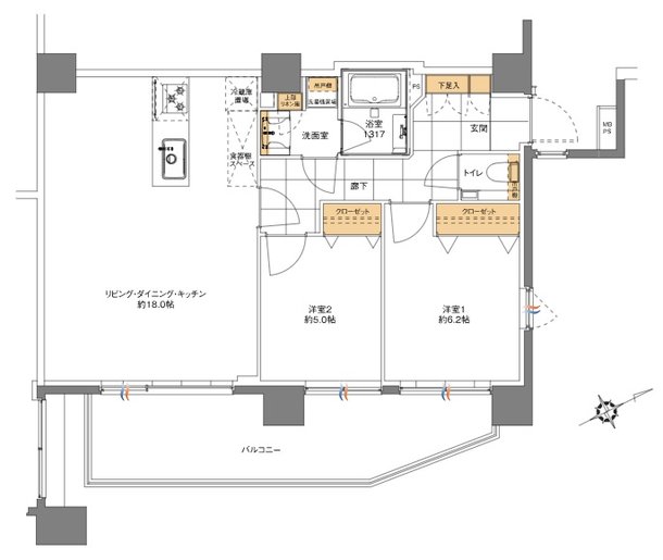
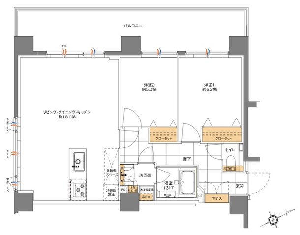
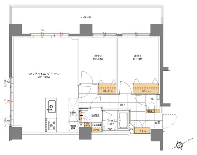
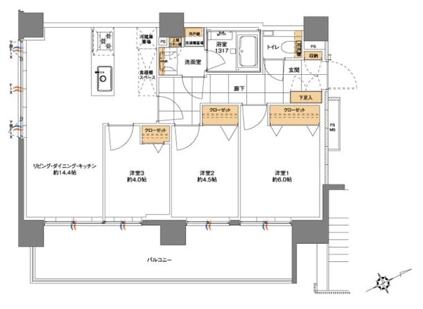
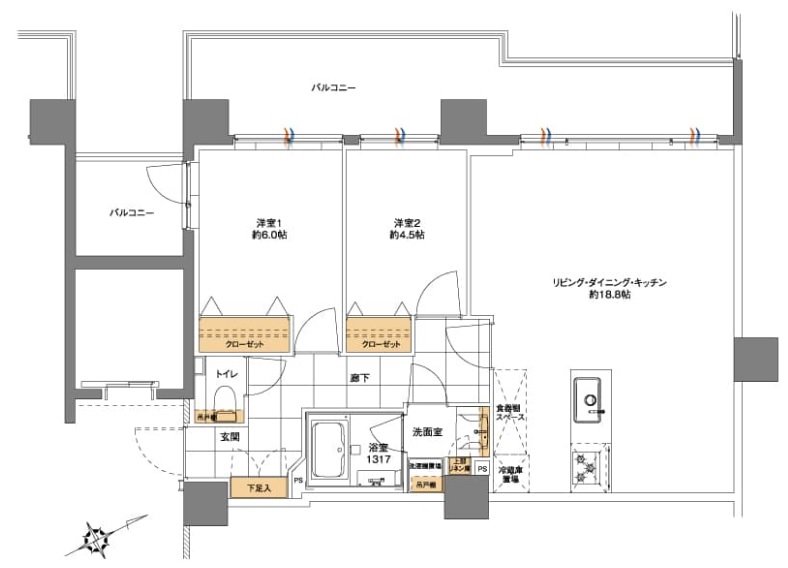
- 間取り
-
2LDK・3LDK
間取りを見る(6件)
- 販売スケジュール
-
先着順申込受付中

