- 価格
-
4380万円~6670万円
月々の支払い額を見る
- 専有面積
-
59.55㎡~73.92㎡
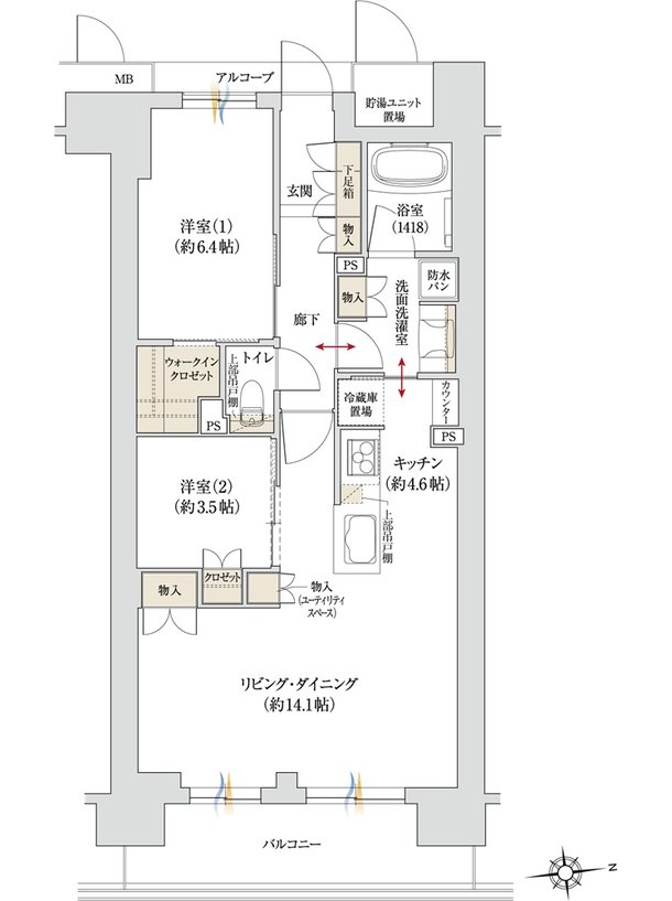
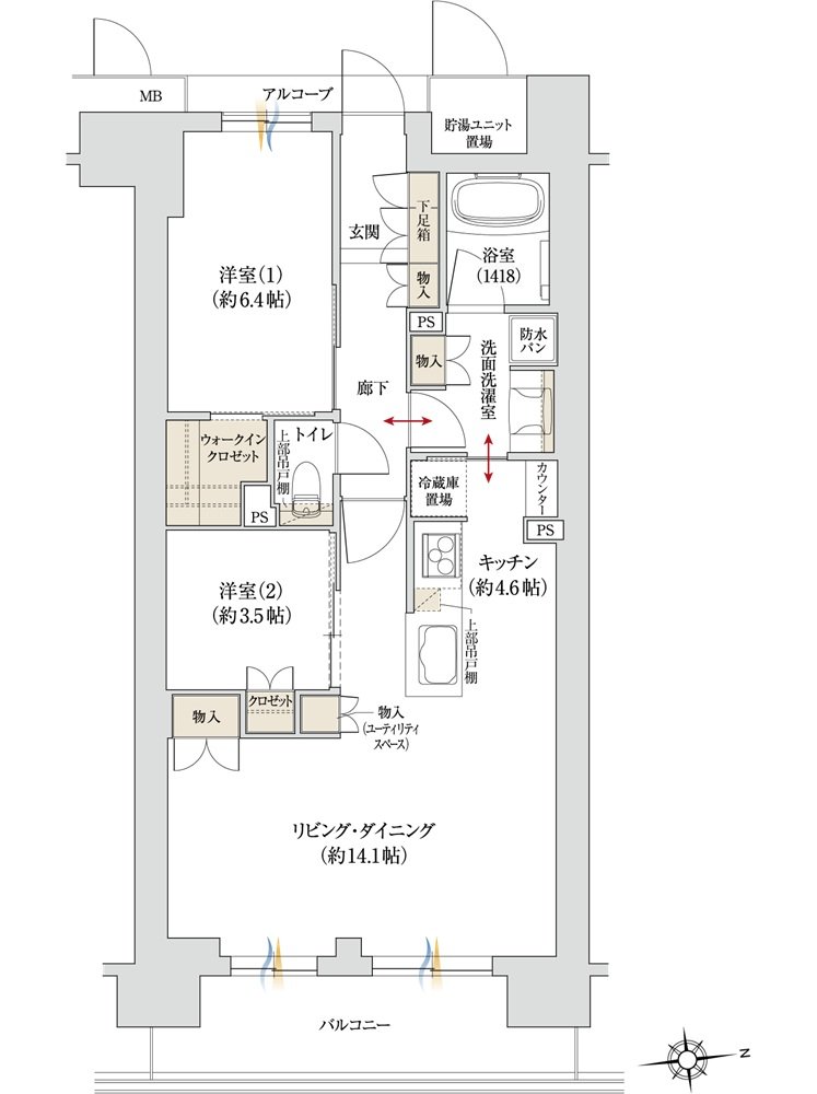
- 間取り
-
2LDK~3LDK
間取りを見る(10件)
- 販売スケジュール
-
先着順申込受付中

