- 価格
-
5400万円台~6800万円台(100万円単位)(予定)
月々の支払い額を見る
- 専有面積
-
82.19㎡~90.20㎡
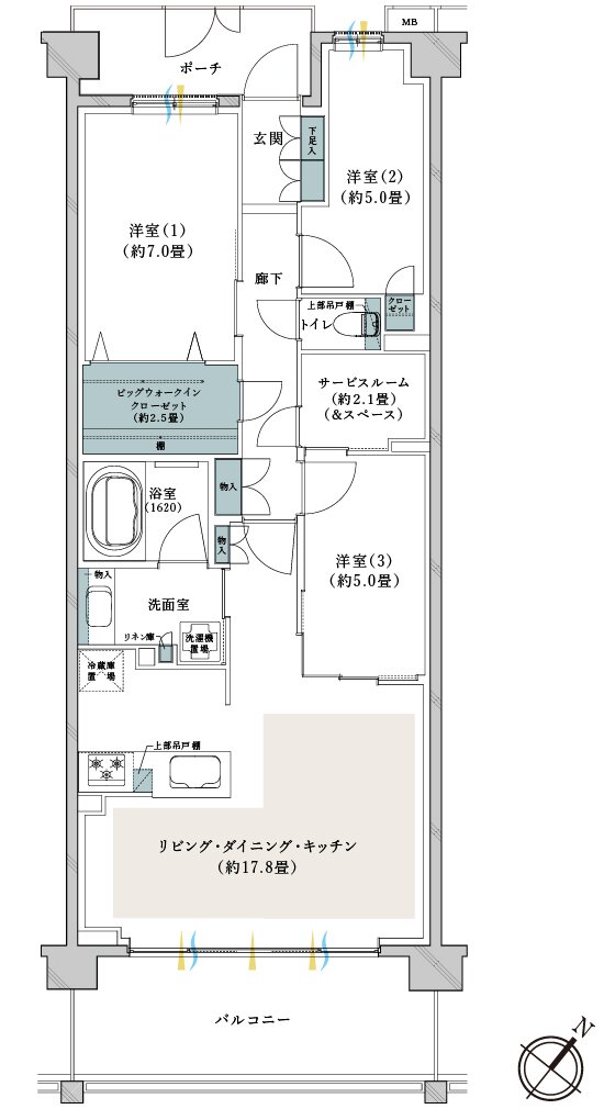
- 間取り
-
4LDK
間取りを見る(2件)
- 販売スケジュール
-
販売開始予定時期:2026年4月上旬

