- 価格
-
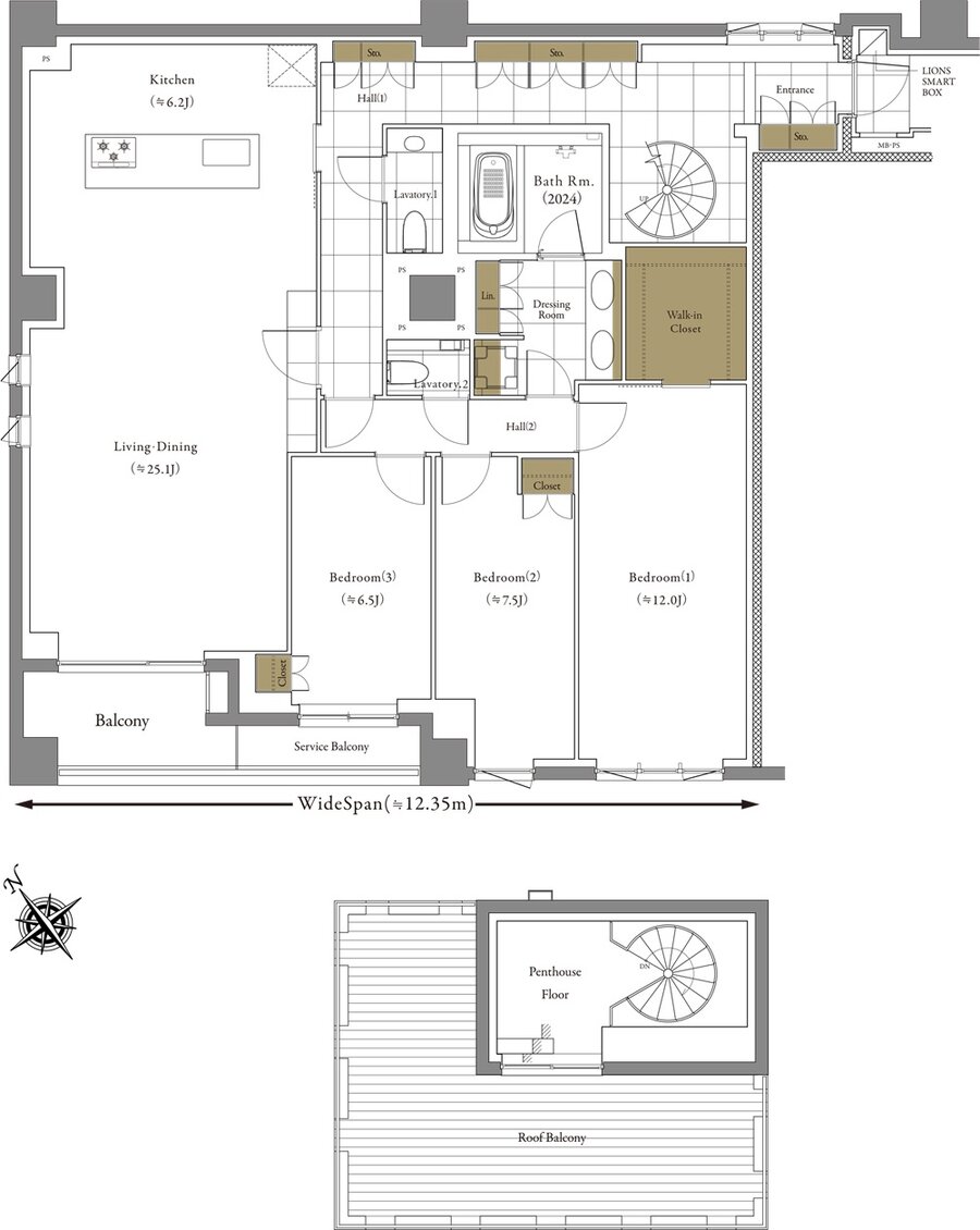
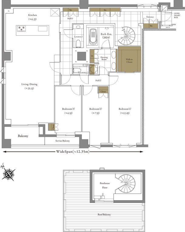
1億5000万円~2億4800万円
月々の支払い額を見る
- 専有面積
-
105.70㎡~144.99㎡
- 間取り
-
2LDK, 3LDK
間取りを見る(4件)
- 販売スケジュール
-
先着順受付中

