- 価格
-
3570万円~8710万円
月々の支払い額を見る
- 専有面積
-
62.73㎡~120.63㎡
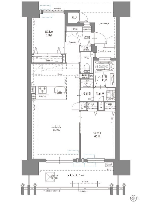
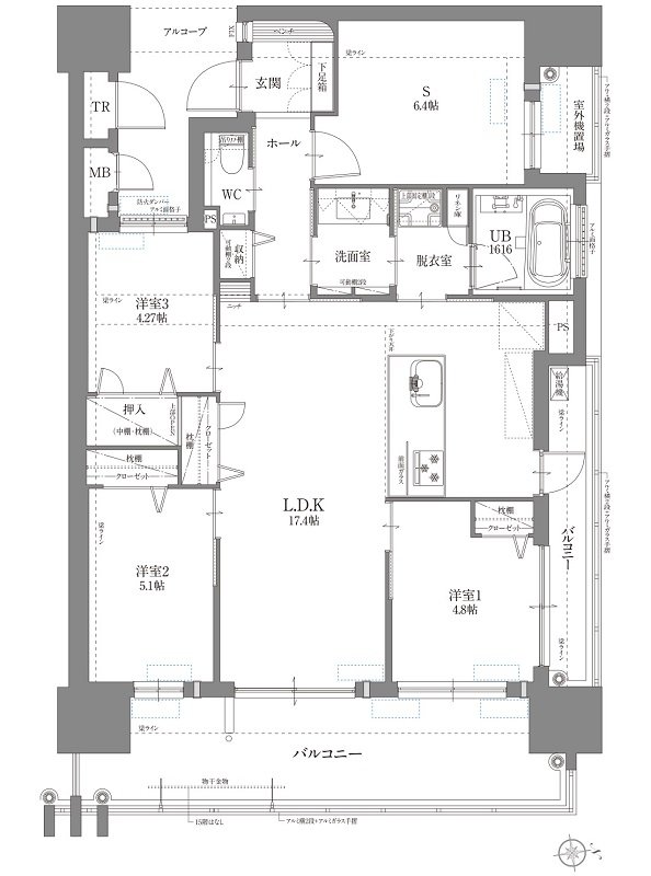
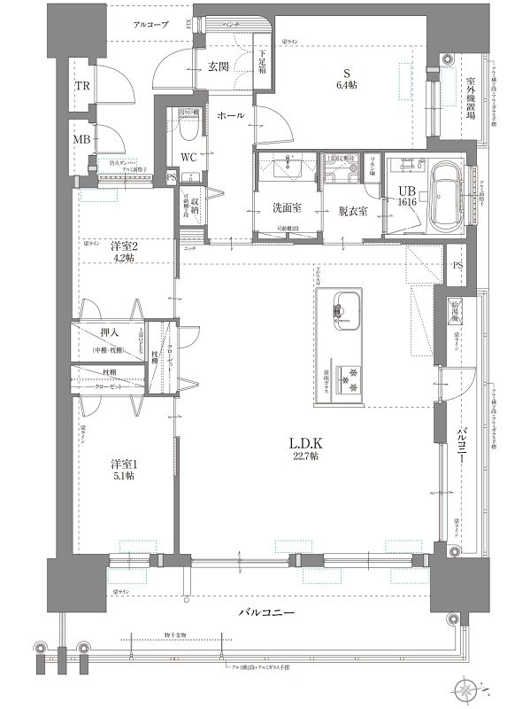
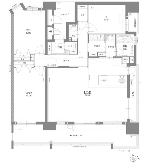
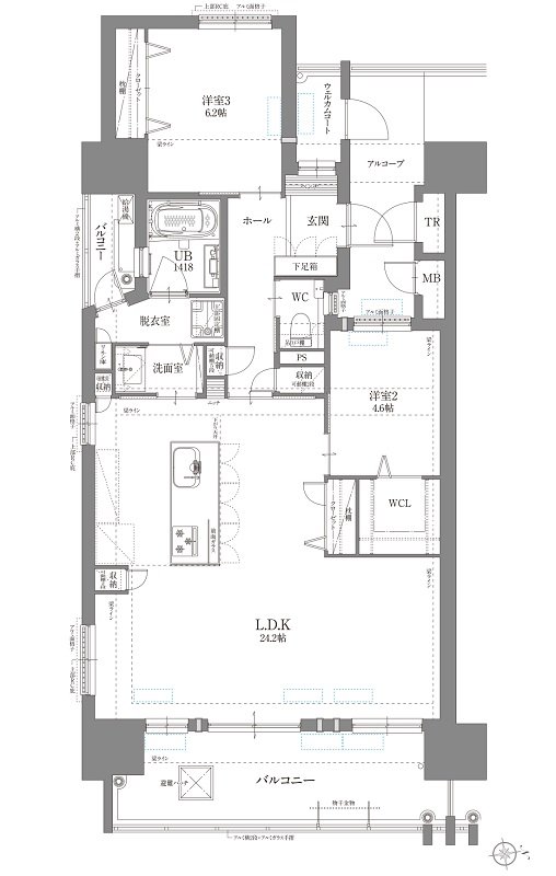
- 間取り
-
2LDK、2LDK+S、3LDK、3LDK+S
間取りを見る(6件)
- 販売スケジュール
-
先着順申込み受付中

