- 価格
-
3798万円、5198万円
月々の支払い額を見る
- 専有面積
-
68.51㎡
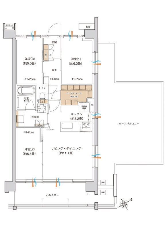
- 間取り
-
3LDK
間取りを見る(3件)
- 販売スケジュール
-
第4期2次(最終期)登録申込・抽選受付のご案内 ●登録受付期間/2026年7月3日(金)10:00~2026年7月11日(土)16:00 ●登録受付時間/10:00~18:00(水・木定休※祝日は除く)※最終日2026年7月11日(土)は16:00まで ●抽選日時/2026年7月11日(土)16:30 ●登録申込受付・抽選場所/「ブランシエラ川崎大島」レジデンスサロン

