- 価格
-
4528万円~5398万円
月々の支払い額を見る
- 専有面積
-
66.72㎡~80.66㎡
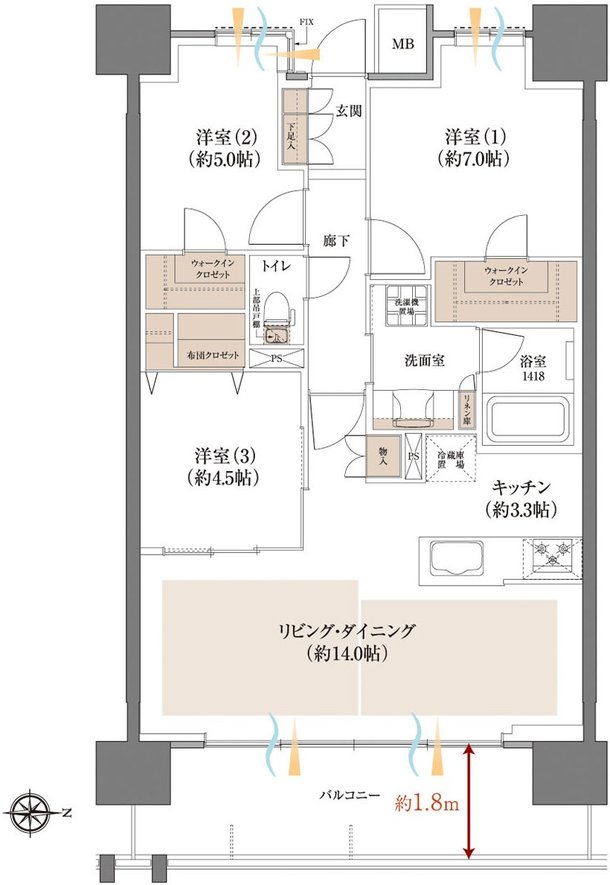
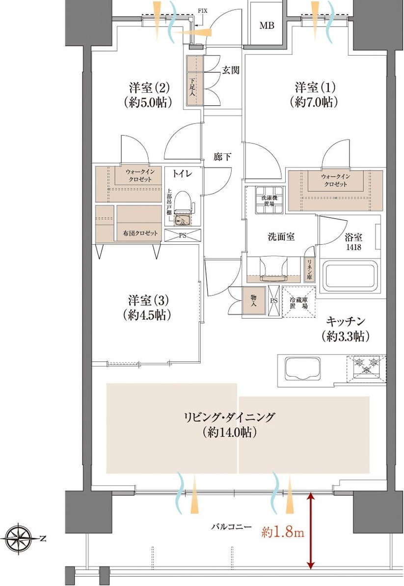
- 間取り
-
3LDK・4LDK
間取りを見る(7件)
- 販売スケジュール
-
2026年1月23日(金)より先着順申込受付開始 ●申込受付場所/「レーベン福島ONE TOWER」マンションギャラリー

