- 価格
-
4088万円~6488万円
月々の支払い額を見る
- 専有面積
-
45.88㎡~67.90㎡
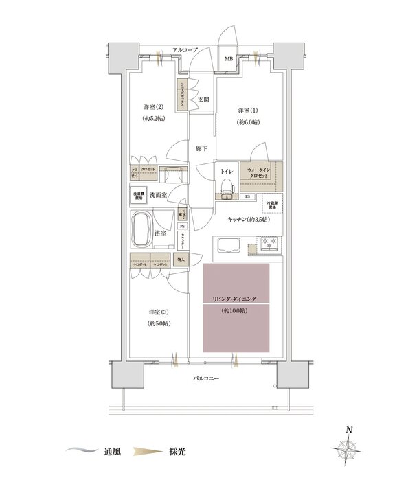
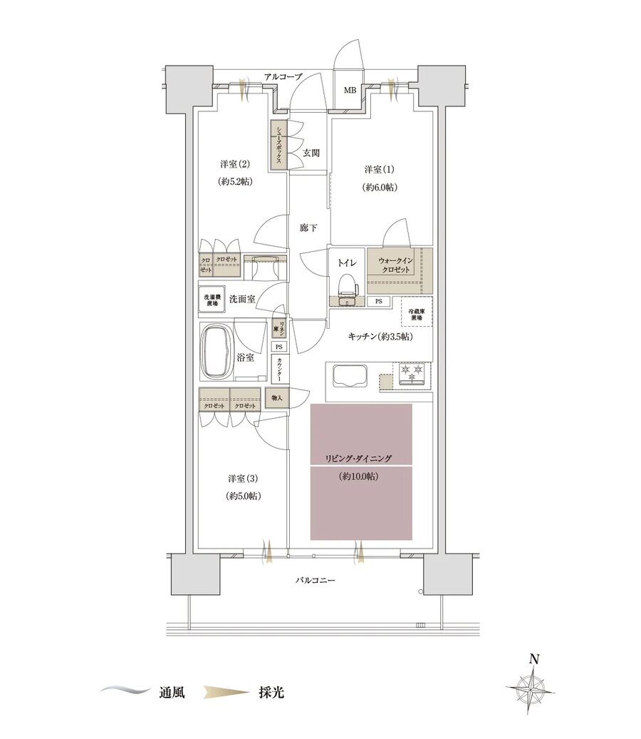
- 間取り
-
2LDK~3LDK+納戸
間取りを見る(8件)
- 販売スケジュール
-
先着順申込受付中

