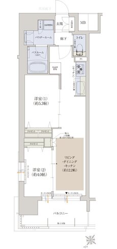
間取り
この物件の詳細情報に戻る〜1LDK(1R・1K・1DK含む)掲載2件
WIC:ウォークインクロゼット SIC:シューズインクロゼット
※掲載の図面は設計図を基に描き起こしたもので、施工上の都合などにより多少変更になる場合がごさいます。予めご了承ください。
関連する他の物件も見てみる
特徴
- 対面キッチン(7)
- ウォークインクローゼット(7)
- I型キッチン(7)
- 一人暮らし・二人暮らし向け(7)
- 子どもと暮らす(7)
- 防災設備(6)
- モデルルーム公開中(6)
- 食器洗い乾燥機(食洗機)(6)
- 2面バルコニー(5)
- 可変式間仕切り(5)
- 宅配ボックス(5)
- 床暖房(5)
- ハンズフリーキー(4)
- 玄関からリビングが見えない間取り(4)
- ペット可(4)
- 南向き(4)
- 即入居可能(4)
- ラウンジ(4)
- 電気自動車対応(3)
- 複層ガラス(ペアガラス)(3)
- エコマンション(3)
- シューズインクローゼット(3)
- ミストサウナ(2)
- 南東向き(2)
- ペット共用施設(2)
- キッズルーム(2)
- 北向き(1)
地域
間取り
価格帯
不動産会社
駅
沿線

