- 価格
-
3900万円台~5600万円台(100万円単位)(予定)
月々の支払い額を見る
- 専有面積
-
62.49㎡~76.79㎡
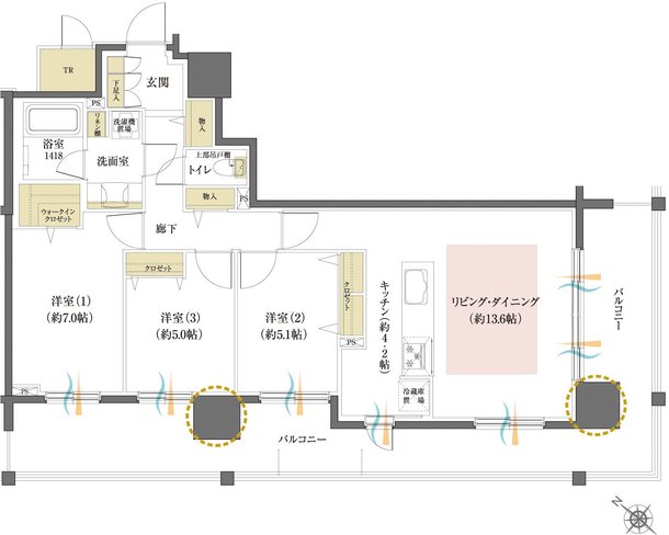
- 間取り
-
2LDK・3LDK
間取りを見る(16件)
- 販売スケジュール
-
2026年4月中旬販売開始予定

