- 価格
-
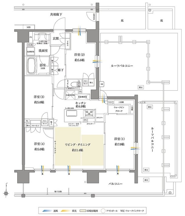
5190万円~6070万円
月々の支払い額を見る
- 専有面積
-
64.75㎡、70.29㎡
- 間取り
-
2LDK+S(納戸)・3LDK
間取りを見る(4件)
- 販売スケジュール
-
先着順申込受付中

