- 価格
-
3390万円~4770万円
月々の支払い額を見る
- 専有面積
-
48.92㎡~75.26㎡
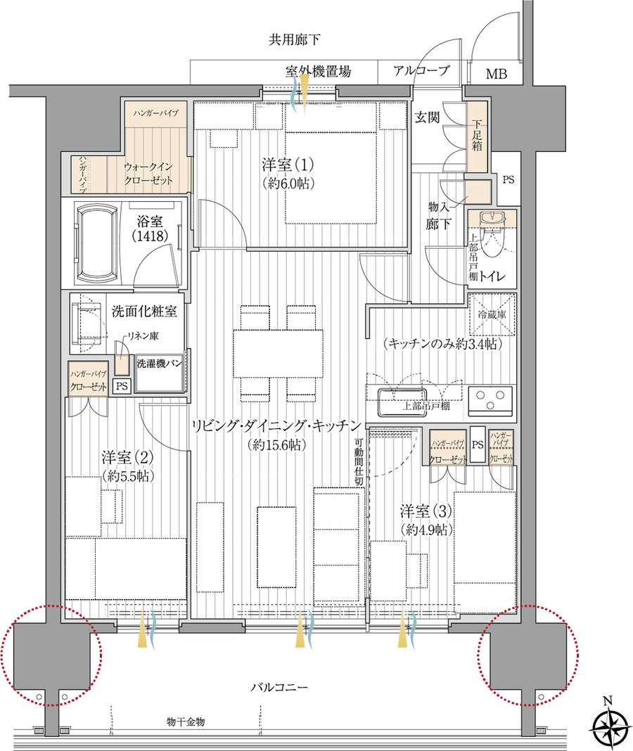
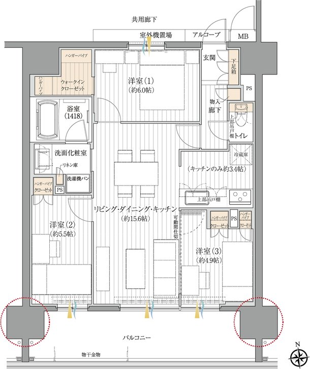
- 間取り
-
2LDK~3LDK
間取りを見る(5件)
- 販売スケジュール
-
先着順申込み受付中

