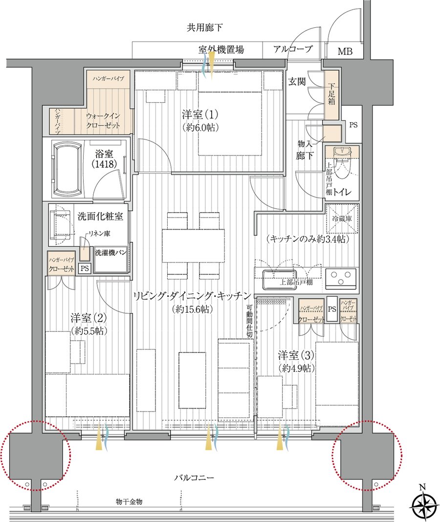
ダイアパレス一宮本町 間取り Bタイプ
タイプ

Bタイプ

間取り

3LDK+ウォークインクローゼット

専有面積

72.00㎡

バルコニー面積

15.20㎡

  • アルコーブ
  • 玄関からリビングが見えない間取り
  • 可変式間仕切り
  • ウォークインクローゼット
  • 南向き
ダイアパレス一宮本町 間取り Cタイプ
タイプ

Cタイプ

間取り

3LDK

専有面積

68.90㎡

バルコニー面積

-

備考

バルコニー面積:12.35㎡(3〜13階)、10.67㎡(2階)

  • アルコーブ
  • 可変式間仕切り
  • 南向き
ダイアパレス一宮本町 間取り Gタイプ
タイプ

Gタイプ

間取り

3LDK+ウォークインクローゼット×3

専有面積

75.26㎡

バルコニー面積

16.64㎡

備考

プライベートポーチ面積:6.87㎡

  • ポーチ
  • 可変式間仕切り
  • ウォークインクローゼット
  • 南向き
ダイアパレス一宮本町 間取り B4タイプ
タイプ

B4タイプ

間取り

2LDK+ウォークインクローゼット

専有面積

72.00㎡

バルコニー面積

15.20㎡

  • アルコーブ
  • 玄関からリビングが見えない間取り
  • 広いリビング
  • ウォークインクローゼット
  • 南向き
ダイアパレス一宮本町 間取り Eタイプ
タイプ

Eタイプ

間取り

2LDK+ウォークインクローゼット×2+納戸

専有面積

48.92㎡

バルコニー面積

9.02㎡

  • アルコーブ
  • ウォークインクローゼット
  • 南向き

このページの一番上へ