- 価格
-
5850万円~1億2980万円
月々の支払い額を見る
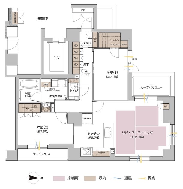
- 専有面積
-
58.12㎡~84.35㎡
- 間取り
-
2LDK・3LDK
間取りを見る(3件)
- 販売スケジュール
-
先着順申込受付中

