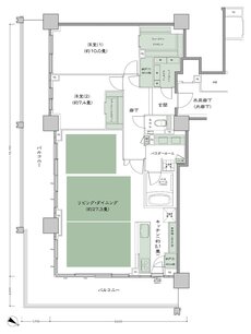
間取り
この物件の詳細情報に戻る〜1LDK(1R・1K・1DK含む)掲載6件
2LDK掲載19件
N:納戸 WIC:ウォークインクロゼット 2WIC:2ウォークインクロゼット SIC:シューズインクロゼット 2N:2納戸
※掲載の図面は、施工上の都合・改良等により多少変更する場合があります。あらかじめご了承ください。
※掲載の図面は本タイプの基本図面です。階数・列により間取りが一部異なる場合があります。詳細は図面集をご確認ください。
関連する他の物件も見てみる
特徴
- 子どもと暮らす(67)
- I型キッチン(63)
- 対面キッチン(62)
- 一人暮らし・二人暮らし向け(59)
- ウォークインクローゼット(57)
- 複数沿線利用可能(46)
- モデルルーム公開中(39)
- 可変式間仕切り(37)
- 床暖房(35)
- 南向き(35)
- 2面バルコニー(32)
- シューズインクローゼット(32)
- 宅配ボックス(31)
- 玄関からリビングが見えない間取り(30)
- 食器洗い乾燥機(食洗機)(30)
- 浴室暖房換気乾燥機(28)
- ハンズフリーキー(26)
- 複層ガラス(ペアガラス)(24)
- 南西向き(23)
- 電気自動車対応(21)
- 出入口が2か所以上あるキッチン(20)
- ペット可(19)
- 広いリビング(19)
- 高級マンション・ハイグレードマンション(18)
- 東向き(17)
- 大規模マンション(17)
- L字バルコニー(16)
- ペット共用施設(15)
- 西向き(13)
- 南東向き(13)
- ラウンジ(11)
- ディスポーザー(11)
- 24時間ゴミ出し可能(10)
- L型キッチン(10)
- ミストサウナ(10)
- 内廊下(7)
- バリアフリー(7)
- タワーマンション・高層マンション(6)
- オール電化(5)
- 耐震・免震・制振(5)
- 北向き(4)
- 広いバルコニー(4)
- コンシェルジュサービス(4)
- ゲストルーム(4)
- フィットネスルーム(プール含む)(3)
- IHクッキングヒーター(3)
- パーティールーム(3)
地域
間取り
価格帯
不動産会社
駅
沿線

