- 価格
-
3650万円~4920万円
月々の支払い額を見る
- 専有面積
-
66.6㎡~77.13㎡
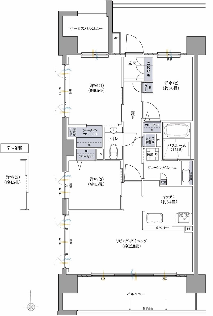
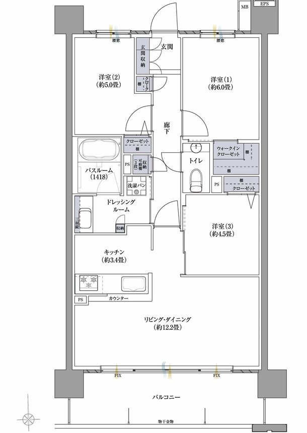
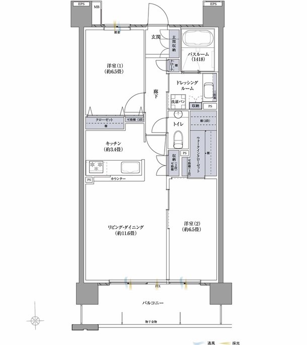
- 間取り
-
2LDK・3LDK
間取りを見る(4件)
- 販売スケジュール
-
先着順申込み受付中

