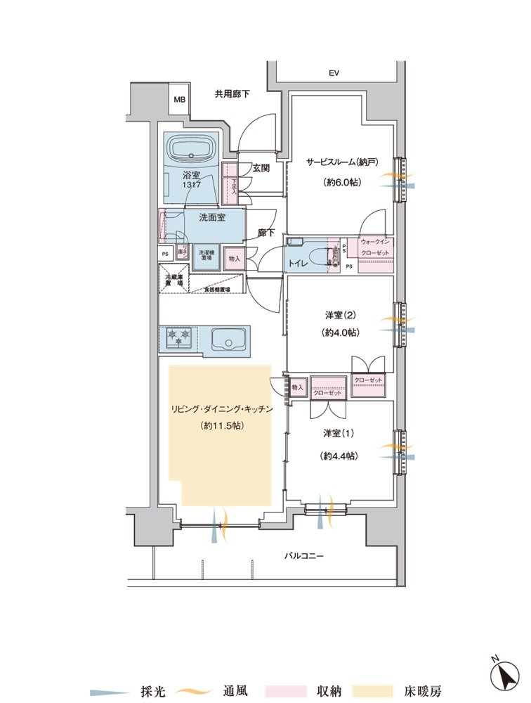
間取り
この物件の詳細情報に戻る2LDK掲載3件
※S:サービスルーム(納戸)、WIC:ウォークインクローゼット、SIC:シューズインクローゼット
※掲載の間取りは設計段階のもので、今後変更になる可能性がございます。
関連する他の物件も見てみる
特徴
- 子どもと暮らす(61)
- 対面キッチン(59)
- ウォークインクローゼット(58)
- 可変式間仕切り(55)
- I型キッチン(55)
- 一人暮らし・二人暮らし向け(50)
- モデルルーム公開中(47)
- 食器洗い乾燥機(食洗機)(46)
- 床暖房(42)
- 浴室暖房換気乾燥機(42)
- 複層ガラス(ペアガラス)(42)
- 販売前・販売予定(41)
- 宅配ボックス(40)
- ペット可(37)
- 複数沿線利用可能(36)
- ハンズフリーキー(36)
- シューズインクローゼット(33)
- 南向き(29)
- 駅近(駅徒歩5分以内・駅直結)(25)
- 二重床/二重天井(24)
- 即入居可能(22)
- フラット35(19)
- 南西向き(14)
- 内廊下(5)
地域
間取り
価格帯
不動産会社
駅
沿線

