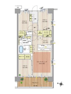
間取り
この物件の詳細情報に戻る3LDK掲載7件
WIC:ウォークインクローゼット
N:納戸
MC:マルチクローゼット
※掲載の間取図は計画段階の図面を基に描き起したもので今後変更になる場合があります。また、梁・下がり天井などの表記は省略しております。
関連する他の物件も見てみる
 
            特徴
- I型キッチン(39)
- 対面キッチン(39)
- ウォークインクローゼット(38)
- 子どもと暮らす(38)
- 床暖房(36)
- 可変式間仕切り(36)
- 食器洗い乾燥機(食洗機)(33)
- 浴室暖房換気乾燥機(33)
- 一人暮らし・二人暮らし向け(31)
- 複数沿線利用可能(30)
- モデルルーム公開中(29)
- 複層ガラス(ペアガラス)(29)
- 宅配ボックス(28)
- 平置き駐車場(28)
- エコマンション(26)
- ペット可(25)
- 大規模マンション(23)
- 24時間ゴミ出し可能(23)
- 2面バルコニー(22)
- 防災設備(21)
- 南向き(20)
- ラウンジ(19)
- ペット共用施設(16)
- 東向き(16)
- 電気自動車対応(16)
- 南西向き(15)
- 西向き(15)
- テラス(14)
- 南東向き(13)
- 即入居可能(12)
- 太陽光発電(7)
- 自走式駐車場(6)
- バリアフリー(4)
地域
間取り
価格帯
不動産会社
駅
沿線
 
                                                                 
                                                                 
                                                                 
                                                                 
                                                                 
                                                                 
                                                                 
                                                                
 
                             
                             
                             
                             
                             
                             
                             
                            