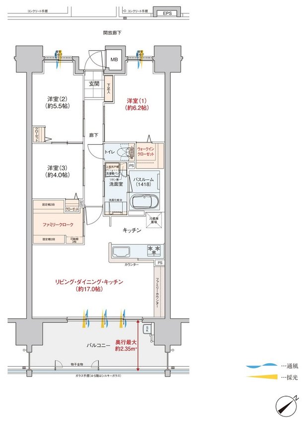
ヴェルディ・ザ・タワー呉 間取り C type(2〜20階)
タイプ

C type(2〜20階)

間取り

3LDK+WIC+FC

専有面積

74.91㎡

バルコニー面積

14.92㎡

備考

MB面積:0.81㎡

  • ウォークインクローゼット
  • 広いバルコニー
  • スロップシンク
  • 南東向き
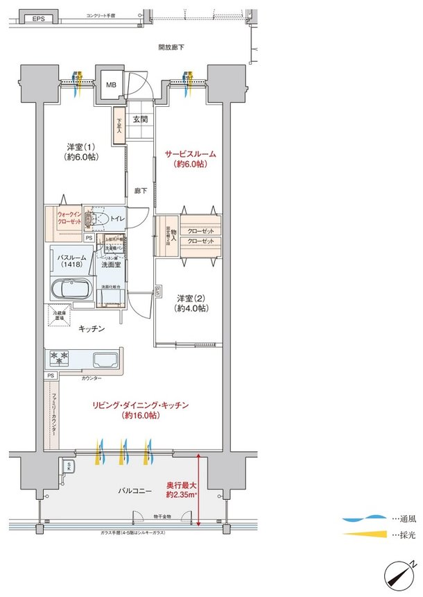
ヴェルディ・ザ・タワー呉 間取り D type(3〜20階)
タイプ

D type(3〜20階)

間取り

2LDK+S+WIC

専有面積

71.31㎡

バルコニー面積

14.21㎡

備考

MB面積:0.81㎡

  • ウォークインクローゼット
  • 広いバルコニー
  • スロップシンク
  • 南東向き

このページの一番上へ