シティタワー札幌すすきの 間取り A_標準 type
タイプ

A_標準 type

間取り

3LDK+N+2WIC

専有面積

70.16㎡

バルコニー面積

8.79㎡

備考

トランクルーム面積:0.72㎡

  • 玄関からリビングが見えない間取り
  • 可変式間仕切り
  • ウォークインクローゼット
  • 西向き
  • フラットフロア
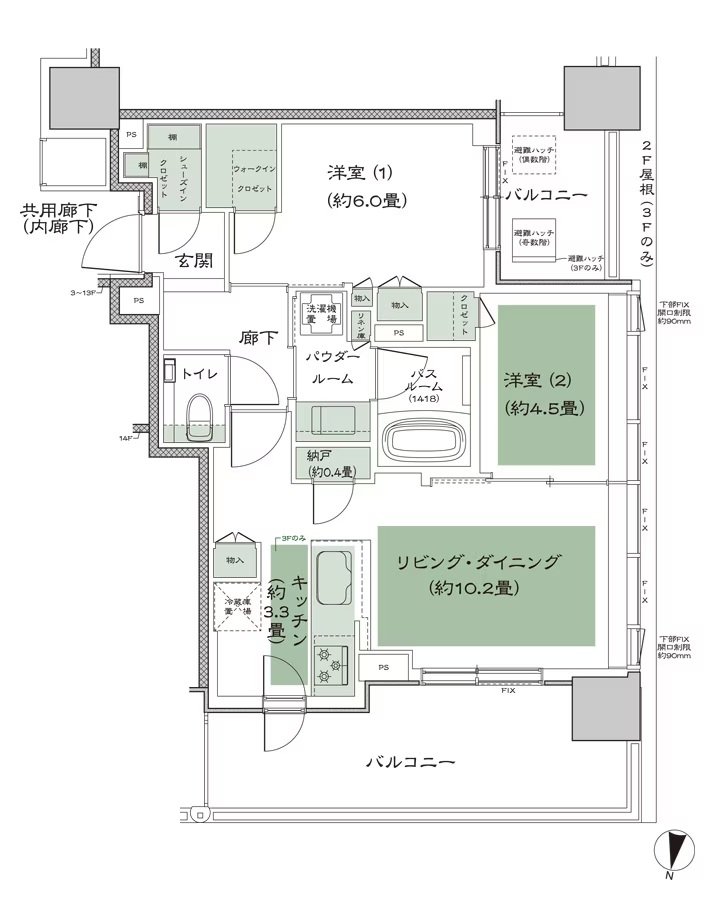
シティタワー札幌すすきの 間取り J_標準 type
タイプ

J_標準 type

間取り

3LDK+N+SIC

専有面積

79.06㎡

バルコニー面積

26.90㎡

備考

トランクルーム面積:0.72㎡

  • 玄関からリビングが見えない間取り
  • 可変式間仕切り
  • 広いリビング
  • シューズインクローゼット
  • トランクルーム
  • 南向き
  • フラットフロア
シティタワー札幌すすきの 間取り A_LD拡大 type
タイプ

A_LD拡大 type

間取り

2LDK+2WIC

専有面積

70.16㎡

バルコニー面積

8.79㎡

備考

トランクルーム面積:0.72㎡

  • 玄関からリビングが見えない間取り
  • 広いリビング
  • ウォークインクローゼット
  • 西向き
  • フラットフロア
シティタワー札幌すすきの 間取り Da_標準 type
タイプ

Da_標準 type

間取り

2LDK+N+WIC+SIC

専有面積

56.81㎡

バルコニー面積

22.55㎡

備考

トランクルーム面積:0.72㎡

  • 玄関からリビングが見えない間取り
  • 可変式間仕切り
  • ウォークインクローゼット
  • シューズインクローゼット
  • 出入口が2か所以上あるキッチン
  • 2面バルコニー
  • トランクルーム
  • 東向き
  • フラットフロア
シティタワー札幌すすきの 間取り E_標準 type
タイプ

E_標準 type

間取り

2LDK+N+WIC+SIC

専有面積

56.97㎡

バルコニー面積

16.28㎡

備考

トランクルーム面積:0.72㎡

  • 玄関からリビングが見えない間取り
  • ウォークインクローゼット
  • シューズインクローゼット
  • 出入口が2か所以上あるキッチン
  • 2面バルコニー
  • トランクルーム
  • 北向き
シティタワー札幌すすきの 間取り F_標準 type
タイプ

F_標準 type

間取り

2LDK

専有面積

57.25㎡

バルコニー面積

4.14㎡

備考

トランクルーム面積:0.72㎡

  • 可変式間仕切り
  • ウォークインクローゼット
  • シューズインクローゼット
  • 西向き
  • フラットフロア
シティタワー札幌すすきの 間取り A'_LD拡大 type
タイプ

A'_LD拡大 type

間取り

2LDK+2WIC

専有面積

70.16㎡

バルコニー面積

8.79㎡

備考

トランクルーム面積:0.72㎡

  • 玄関からリビングが見えない間取り
  • 広いリビング
  • ウォークインクローゼット
  • 西向き
  • フラットフロア
シティタワー札幌すすきの 間取り C_標準 type
タイプ

C_標準 type

間取り

2LDK+N+WIC

専有面積

63.32㎡

バルコニー面積

23.54㎡

備考

トランクルーム面積:0.72㎡

  • 玄関からリビングが見えない間取り
  • 可変式間仕切り
  • ウォークインクローゼット
  • 2面バルコニー
  • トランクルーム
  • 北向き
  • フラットフロア
シティタワー札幌すすきの 間取り I_LD拡大 type
タイプ

I_LD拡大 type

間取り

2LDK+N+WIC+SIC

専有面積

78.18㎡

バルコニー面積

27.64㎡

備考

トランクルーム面積:0.72㎡

  • 広いリビング
  • ウォークインクローゼット
  • シューズインクローゼット
  • 出入口が2か所以上あるキッチン
シティタワー札幌すすきの 間取り J_LD拡大 type
タイプ

J_LD拡大 type

間取り

2LDK+N+SIC

専有面積

79.06㎡

バルコニー面積

26.90㎡

備考

トランクルーム面積:0.72㎡

  • 玄関からリビングが見えない間取り
  • 広いリビング
  • シューズインクローゼット
  • トランクルーム
  • 南向き
  • フラットフロア
シティタワー札幌すすきの 間取り K_標準 type
タイプ

K_標準 type

間取り

2LDK+N+WIC+WTC

専有面積

61.47㎡

バルコニー面積

23.52㎡

備考

トランクルーム面積:0.72㎡

  • 玄関からリビングが見えない間取り
  • 可変式間仕切り
  • ウォークインクローゼット
  • 2面バルコニー
  • 南向き
  • フラットフロア
シティタワー札幌すすきの 間取り H_標準 type
タイプ

H_標準 type

間取り

1LDK+N+WIC+SIC

専有面積

42.60㎡

バルコニー面積

14.00㎡

備考

トランクルーム面積:0.72㎡

  • 可変式間仕切り
  • ウォークインクローゼット
  • シューズインクローゼット
  • トランクルーム
  • 北向き
  • フラットフロア

このページの一番上へ