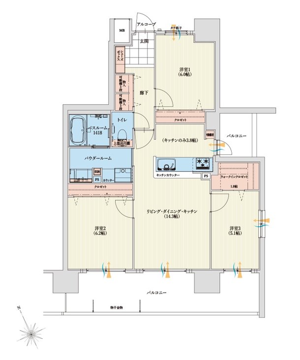
アルファステイツ四日市城北町 間取り E type
タイプ

E type

間取り

3LDK +ウォークインクロゼット

専有面積

75.46㎡

バルコニー面積

20.46㎡

備考

アルコーブ面積 /2.14㎡

  • アルコーブ
  • ウォークインクローゼット
  • 出入口が2か所以上あるキッチン
  • 2面バルコニー
  • 南向き

このページの一番上へ