- 価格
-
2800万円~3750万円
月々の支払い額を見る
- 専有面積
-
63.17㎡~82.92㎡
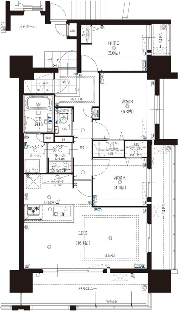
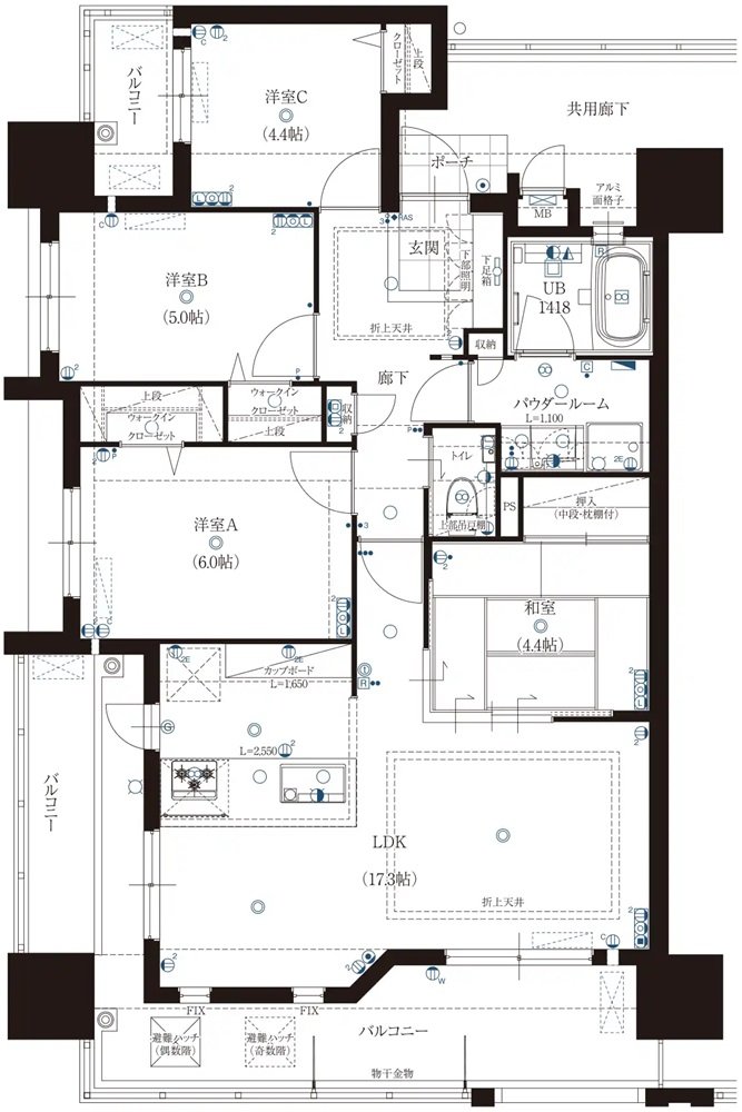
- 間取り
-
3LDK・4LDK
間取りを見る(4件)
- 販売スケジュール
-
先着順申込み受付中

