- 価格
-
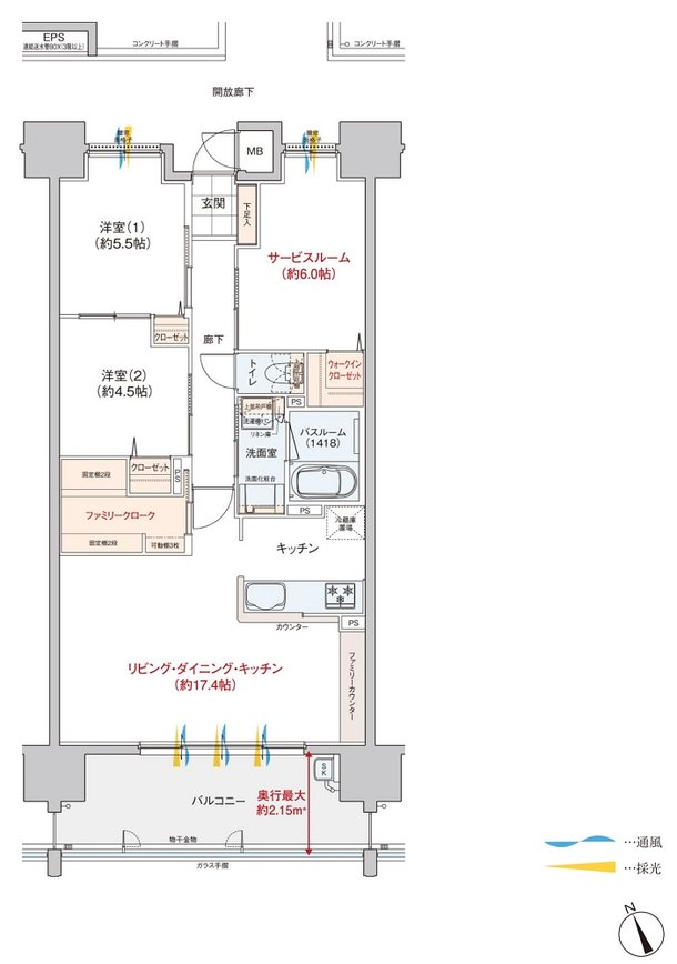
3058万円~3338万円
月々の支払い額を見る
- 専有面積
-
70.80㎡、75.31㎡
- 間取り
-
2LDK+S・3LDK
間取りを見る(2件)
- 販売スケジュール
-
先着順申込受付中

