プレシス小田急相模原ステーションサイト 間取り Cタイプ
タイプ

Cタイプ

間取り

3LDK+2WIC(6~14F)

専有面積

56.88㎡

バルコニー面積

10.54㎡

  • 可変式間仕切り
  • ウォークインクローゼット
  • 南西向き
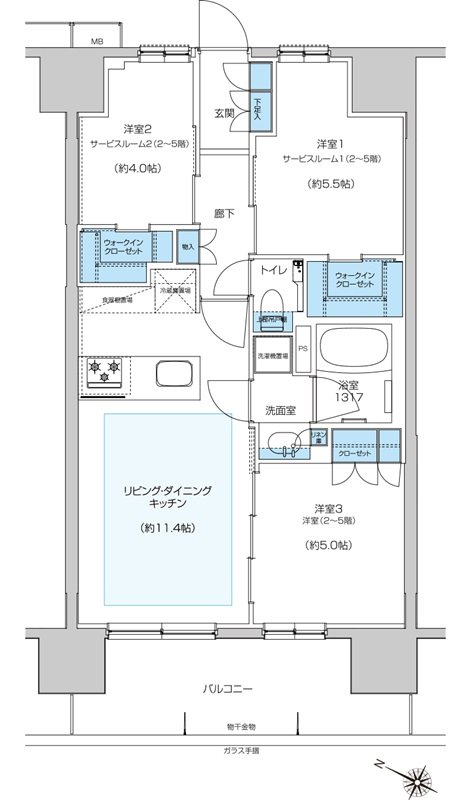
プレシス小田急相模原ステーションサイト 間取り Dタイプ
タイプ

Dタイプ

間取り

3LDK+2WIC(6~14F)1LDK+2S+2WIC(2~5F)

専有面積

58.28㎡

バルコニー面積

10.8㎡

  • 可変式間仕切り
  • ウォークインクローゼット
  • 南西向き
プレシス小田急相模原ステーションサイト 間取り Eタイプ
タイプ

Eタイプ

間取り

3LDK+2WIC(6~14F)2LDK+S+2WIC(2~5F)

専有面積

60.87㎡

バルコニー面積

11.07㎡

  • 可変式間仕切り
  • ウォークインクローゼット
  • 南西向き

このページの一番上へ