- 価格
-
5310万円~8640万円
月々の支払い額を見る
- 専有面積
-
54.58㎡~76.81㎡
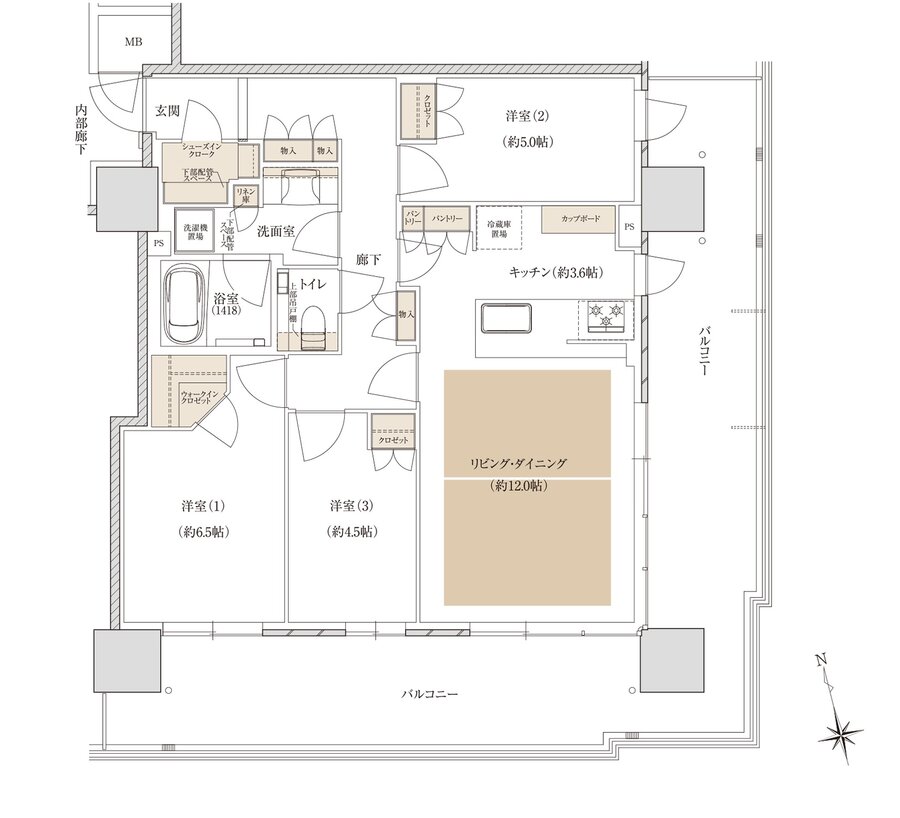
- 間取り
-
1LDK+S~3LDK
間取りを見る(5件)
- 販売スケジュール
-
先着順申込受付中

