- 価格
-
4200万円~5960万円
月々の支払い額を見る
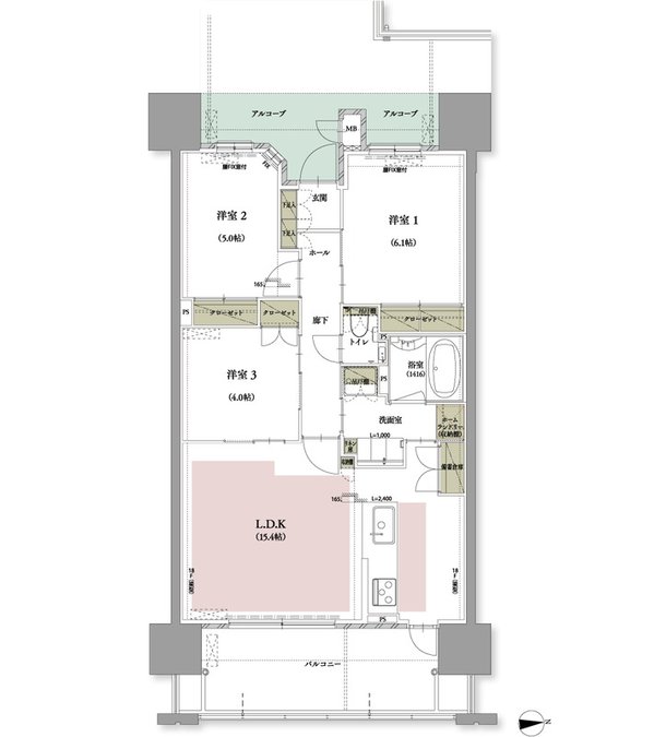
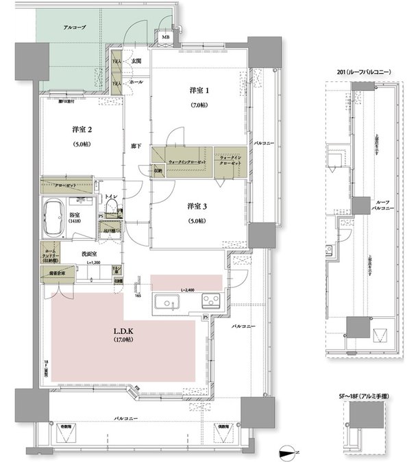
- 専有面積
-
67.33㎡~76.33㎡
- 間取り
-
3LDK
間取りを見る(3件)
- 販売スケジュール
-
先着順申込受付中

