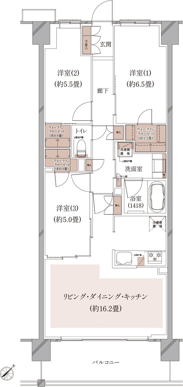
間取り
この物件の詳細情報に戻る3LDK掲載6件
※専有面積は、壁芯計算によります。従って、内法寸法による登記面積とは多少異なります。
※間取り表記において"BW"はビッグウォークインクローゼット、"WIC"はウォークインクローゼット、"MS"はマルチスペース、"N"は納戸、"TR"はトランクルームを表します。
※収納の形状やサイズ、マルチスペースの有無は住戸プランによって異なります。
※掲載の図面は計画段階のものであり、今後変更になる可能性があります。
関連する他の物件も見てみる
特徴
- 対面キッチン(83)
- I型キッチン(81)
- 子どもと暮らす(79)
- ウォークインクローゼット(78)
- 可変式間仕切り(76)
- 床暖房(70)
- 複数沿線利用可能(63)
- 浴室暖房換気乾燥機(56)
- 食器洗い乾燥機(食洗機)(55)
- 宅配ボックス(55)
- モデルルーム公開中(53)
- 複層ガラス(ペアガラス)(47)
- ペット可(46)
- 24時間ゴミ出し可能(43)
- エコマンション(40)
- 駅近(駅徒歩5分以内・駅直結)(39)
- 大規模マンション(36)
- 防災設備(36)
- ラウンジ(34)
- アウトフレーム工法(34)
- 高級マンション・ハイグレードマンション(32)
- 2面バルコニー(30)
- ディスポーザー(27)
- 南東向き(25)
- 南西向き(25)
- 全戸南向き(17)
- 即入居可能(15)
- L字バルコニー(10)
- テレワーク・在宅勤務におすすめ(8)
- パーティールーム(8)
- バリアフリー(8)
- キッズルーム(7)
- ポーチ(6)
- 公園・広場(6)
- 一括受電サービス(5)
- 駐車場100%以上(2)
地域
間取り
価格帯
不動産会社
駅
沿線

