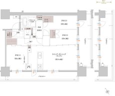
間取り
この物件の詳細情報に戻る2LDK掲載2件
SIC:シューズインクローゼット
WIC:ウォークインクローゼット
※掲載の図面等は計画段階のものであり、内容等が変更になる場合がございます。あらかじめご了承ください。
関連する他の物件も見てみる
特徴
- 子どもと暮らす(19)
- I型キッチン(19)
- 対面キッチン(19)
- ウォークインクローゼット(18)
- 平置き駐車場(15)
- 一人暮らし・二人暮らし向け(14)
- 食器洗い乾燥機(食洗機)(14)
- 駐車場100%以上(13)
- モデルルーム公開中(13)
- 可変式間仕切り(13)
- 複層ガラス(ペアガラス)(12)
- ハンズフリーキー(11)
- 駅近(駅徒歩5分以内・駅直結)(11)
- 浴室に窓(11)
- 出入口が2か所以上あるキッチン(10)
- 宅配ボックス(10)
- エコマンション(10)
- スロップシンク(9)
- 2面バルコニー(9)
- 玄関からリビングが見えない間取り(8)
- シューズインクローゼット(7)
- 二重床/二重天井(7)
- 南東向き(6)
- 即入居可能(6)
- 複数沿線利用可能(6)
- 販売前・販売予定(5)
- 防災設備(4)
- テレワーク・在宅勤務におすすめ(3)
- 南西向き(3)
地域
間取り
価格帯
不動産会社
駅
沿線

