- 価格
-
2890万円~4220万円
月々の支払い額を見る
- 専有面積
-
63.84㎡~80.13㎡
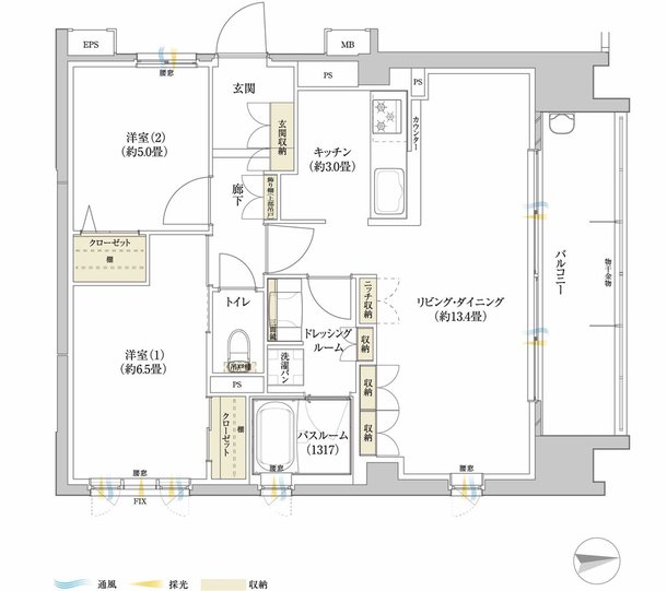
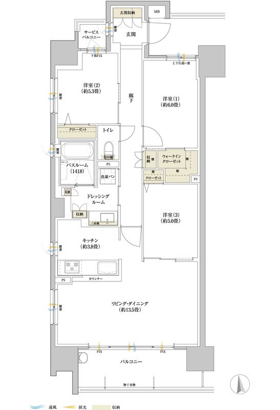
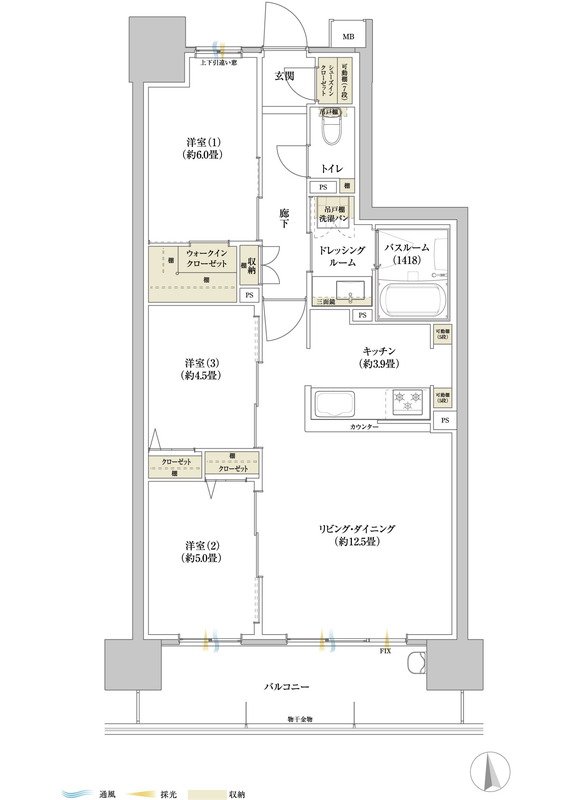
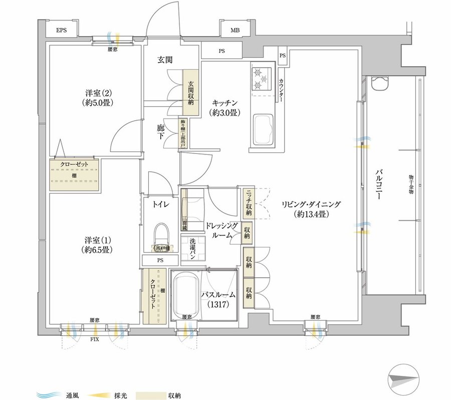
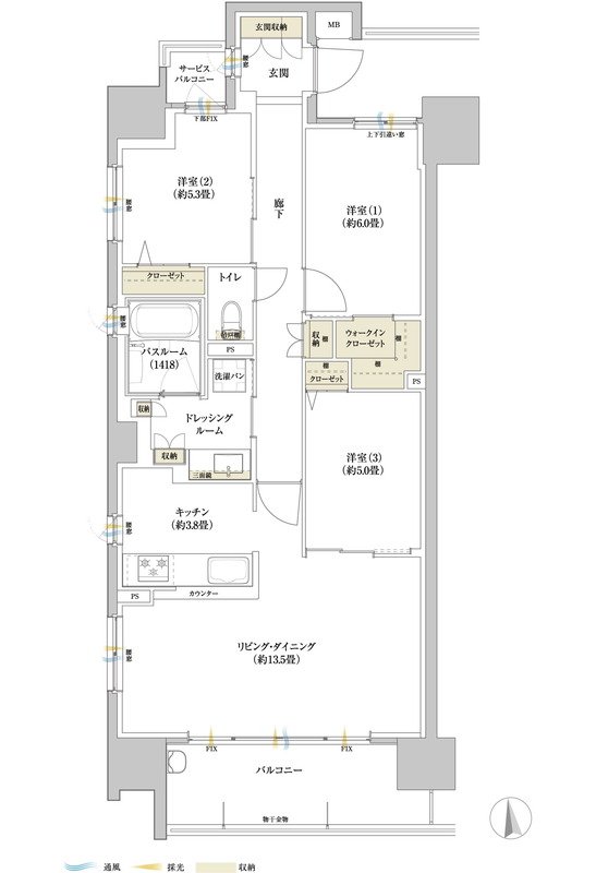
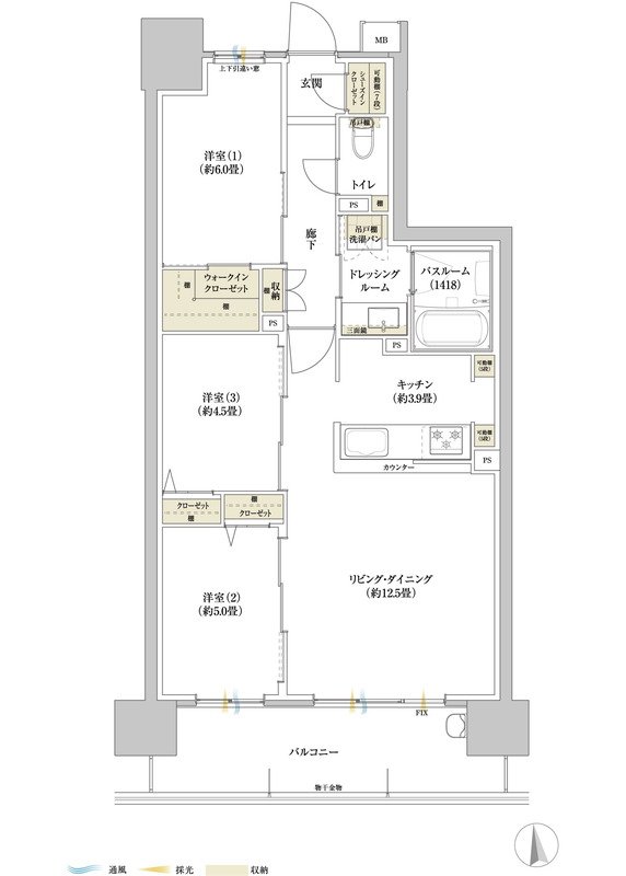
- 間取り
-
2LDK・3LDK
間取りを見る(4件)
- 販売スケジュール
-
受付場所 「サーパス栗林公園ミッドグラン」現地販売センター 必要書類 ・直近の所得がわかる書類(住宅ローン利用予定の方) ・住宅ローン利用予定で、他のお借入がある方はそのローン明細書 ・ご本人確認ができるもの(運転免許証など) ・印鑑(認印可)

