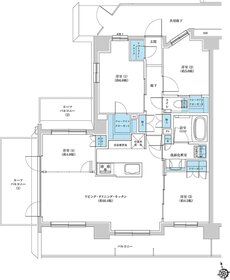
間取り
この物件の詳細情報に戻るS:サービスルーム(納戸)、WIC:ウォークインクローゼット、SIC:シューズインクローク、FC:ファミリークローゼット
※掲載の間取りは設計段階のもので、今後変更になる可能性がございます。
関連する他の物件も見てみる

特徴
- 子どもと暮らす(88)
- 対面キッチン(88)
- ウォークインクローゼット(86)
- I型キッチン(86)
- 可変式間仕切り(83)
- 一人暮らし・二人暮らし向け(67)
- 複数沿線利用可能(66)
- 食器洗い乾燥機(食洗機)(61)
- 浴室暖房換気乾燥機(61)
- 宅配ボックス(59)
- モデルルーム公開中(58)
- シューズインクローゼット(57)
- ペット可(55)
- 販売前・販売予定(55)
- 複層ガラス(ペアガラス)(52)
- 玄関からリビングが見えない間取り(45)
- ハンズフリーキー(43)
- アウトフレーム工法(37)
- 二重床/二重天井(33)
- 南向き(31)
- 東向き(30)
- フラット35(22)
- ルーフバルコニー(17)
- 南向き中心(10)
- アイランドキッチン(9)
- 3面バルコニー(6)
地域
間取り
価格帯
不動産会社
駅
沿線