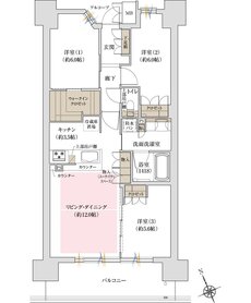
間取り
この物件の詳細情報に戻る2LDK掲載2件
3LDK掲載11件
※掲載の間取り図は、計画段階の設計図書を基に描き起こしたもので実際とは異なる場合がございます。
※住戸内サッシは箇所により、二重サッシとなります。
関連する他の物件も見てみる
特徴
- 子どもと暮らす(95)
- 対面キッチン(90)
- I型キッチン(89)
- ウォークインクローゼット(86)
- 可変式間仕切り(73)
- 駅近(駅徒歩5分以内・駅直結)(71)
- 床暖房(61)
- シューズインクローゼット(58)
- モデルルーム公開中(56)
- アルコーブ(52)
- 食器洗い乾燥機(食洗機)(52)
- 大規模マンション(51)
- 南向き(51)
- 宅配ボックス(51)
- 玄関からリビングが見えない間取り(46)
- 複層ガラス(ペアガラス)(45)
- 浴室暖房換気乾燥機(44)
- 防災設備(38)
- 24時間ゴミ出し可能(37)
- 2面バルコニー(34)
- 電気自動車対応(33)
- ハンズフリーキー(30)
- ラウンジ(24)
- 即入居可能(23)
- 広いリビング(21)
- 南西向き(15)
- 浴室に窓(13)
- キッズルーム(13)
- テレワーク・在宅勤務におすすめ(11)
- 一括受電サービス(9)
地域
間取り
価格帯
不動産会社
駅
沿線

