- 価格
-
4298万円、4658万円
月々の支払い額を見る
- 専有面積
-
50.24㎡、50.26㎡
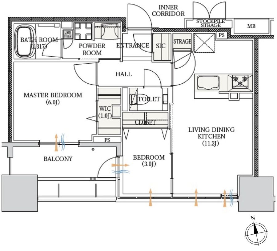
- 間取り
-
2LDK
間取りを見る(1件)
- 販売スケジュール
-
先着順申込み受付中

