- 価格
-
3680万円、3760万円
月々の支払い額を見る
- 専有面積
-
65.38㎡、67.66㎡
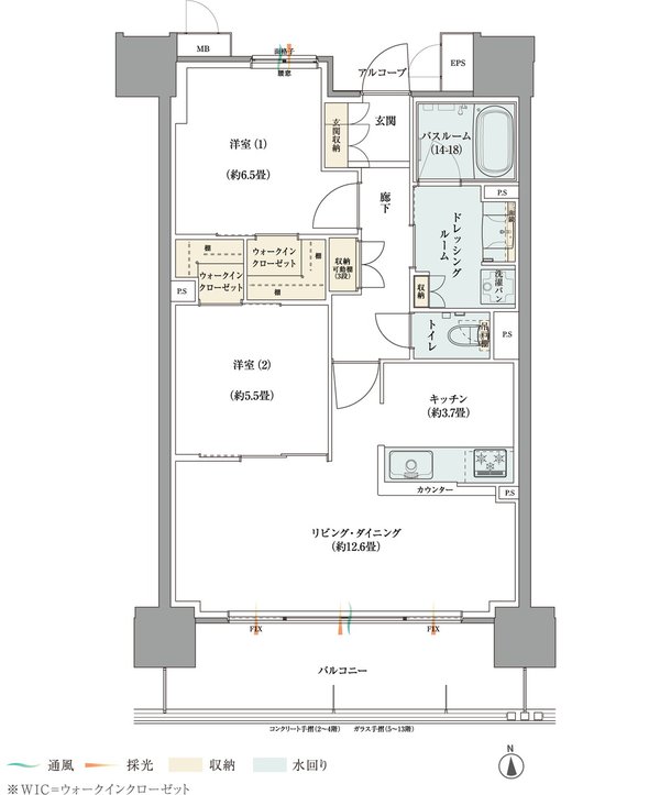
- 間取り
-
2LDK
間取りを見る(2件)
- 販売スケジュール
-
先着順申込み受付中

