- 価格
-
4340万円
月々の支払い額を見る
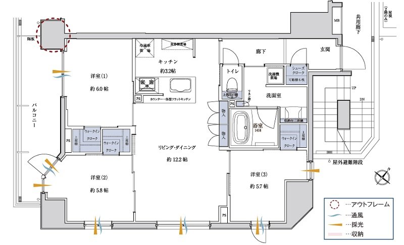
- 専有面積
-
73.29㎡
- 間取り
-
3LDK
間取りを見る(2件)
- 販売スケジュール
-
先着順申込み受付中

