- 価格
-
3000万円~4740万円
月々の支払い額を見る
- 専有面積
-
50.34㎡~78.00㎡
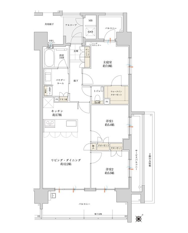
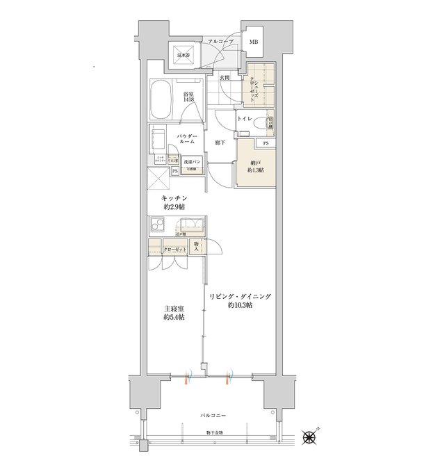
- 間取り
-
1LDK〜3LDK
間取りを見る(3件)
- 販売スケジュール
-
先着順申込み受付中

