- 価格
-
3790万円~1億3100万円
月々の支払い額を見る
- 専有面積
-
45.41㎡~118.43㎡
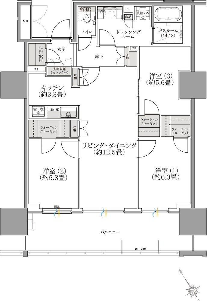
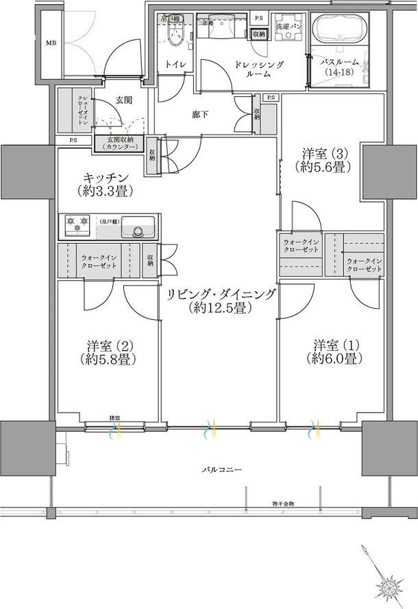
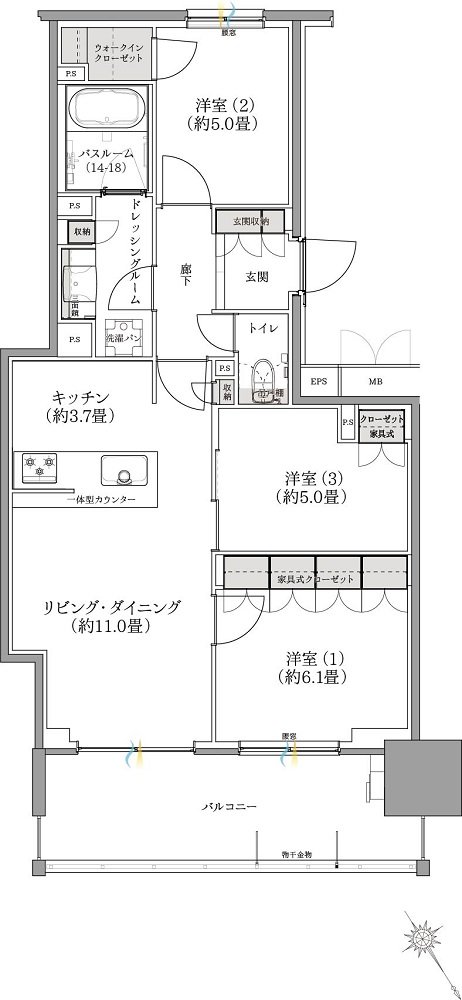
- 間取り
-
1LDK~4LDK
間取りを見る(9件)
- 販売スケジュール
-
先着順申込み受付中

