- 価格
-
2億4990万円
月々の支払い額を見る
- 専有面積
-
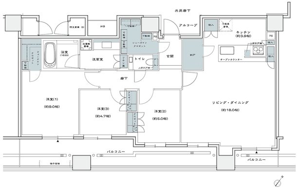
100.37㎡
- 間取り
-
3LDK
間取りを見る(1件)
- 販売スケジュール
-
先着順申込受付中

