- 価格
-
6890万円~1億9430万円
月々の支払い額を見る
- 専有面積
-
55.72㎡~95.07㎡
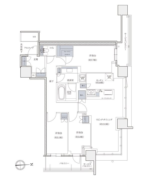
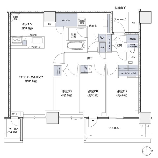
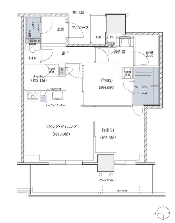
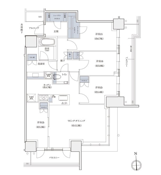
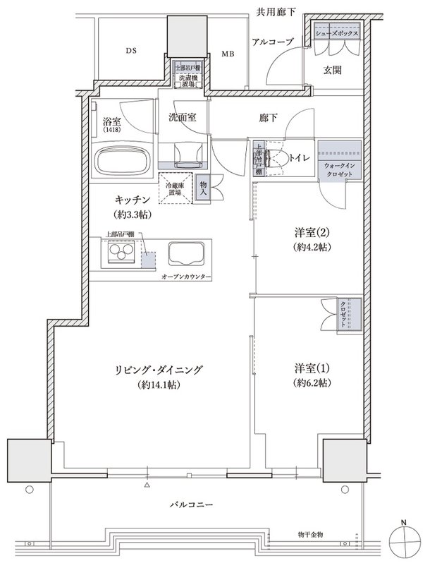
- 間取り
-
2LDK~4LDK
間取りを見る(13件)
- 販売スケジュール
-
先着順申込受付中

