- 価格
-
9500万円~1億5930万円
月々の支払い額を見る
- 専有面積
-
61.10㎡~86.10㎡
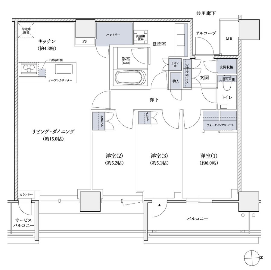
- 間取り
-
2LDK~3LDK
間取りを見る(4件)
- 販売スケジュール
-
先着順申込受付中

