- 価格
-
4400万円~6600万円
月々の支払い額を見る
- 専有面積
-
67.34㎡~73.33㎡
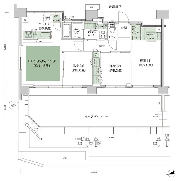
- 間取り
-
1LDK+2S~3LDK
間取りを見る(5件)
- 販売スケジュール
-
先着順受付

