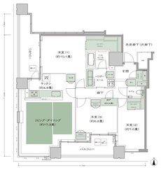
間取り
この物件の詳細情報に戻る〜1LDK(1R・1K・1DK含む)掲載3件
2LDK掲載11件
3LDK掲載6件
WIC:ウォークインクロゼット N:納戸 2WIC:2ウォークインクロゼット SIC:シューズインクロゼット WTC:ウォークスルークロゼット
※掲載の図面は、施工上の都合・改良等により多少変更する場合があります。あらかじめご了承ください。
※掲載の図面は本タイプの基本図面です。階数・列により間取りが一部異なる場合があります。詳細は図面集をご確認ください。
関連する他の物件も見てみる
特徴
- 子どもと暮らす(100)
- 対面キッチン(99)
- I型キッチン(97)
- ウォークインクローゼット(92)
- 一人暮らし・二人暮らし向け(90)
- 可変式間仕切り(77)
- 駅近(駅徒歩5分以内・駅直結)(73)
- 床暖房(70)
- 食器洗い乾燥機(食洗機)(64)
- シューズインクローゼット(63)
- 南向き(61)
- 複数沿線利用可能(60)
- モデルルーム公開中(58)
- 宅配ボックス(57)
- 大規模マンション(51)
- 複層ガラス(ペアガラス)(51)
- 浴室暖房換気乾燥機(48)
- 玄関からリビングが見えない間取り(46)
- エコマンション(45)
- 24時間ゴミ出し可能(41)
- 東向き(39)
- 2面バルコニー(37)
- ペット可(36)
- 出入口が2か所以上あるキッチン(30)
- アウトフレーム工法(28)
- ラウンジ(26)
- 広いリビング(25)
- 西向き(24)
- ミストサウナ(22)
- 高級マンション・ハイグレードマンション(21)
- タワーマンション・高層マンション(21)
- ディスポーザー(20)
- バリアフリー(17)
- パーティールーム(16)
- 北向き(13)
- 耐震・免震・制振(12)
- コンシェルジュサービス(10)
- テレワーク・在宅勤務におすすめ(10)
- 内廊下(9)
- ワイドスパン(8)
- カスタマイズ/プランセレクト可能(8)
- 広いバルコニー(6)
- フィットネスルーム(プール含む)(6)
- ハイサッシ(5)
地域
- 大阪市都島区(4)
- 大阪市福島区(5)
- 大阪市此花区(3)
- 大阪市西区(3)
- 大阪市大正区(1)
- 大阪市天王寺区(8)
- 大阪市東淀川区(2)
- 大阪市旭区(5)
- 大阪市城東区(2)
- 大阪市淀川区(4)
- 大阪市北区(5)
- 大阪市中央区(7)
間取り
価格帯
不動産会社
駅
沿線

