- 価格
-
3498万円~4748万円
月々の支払い額を見る
- 専有面積
-
67.47㎡~70.18㎡
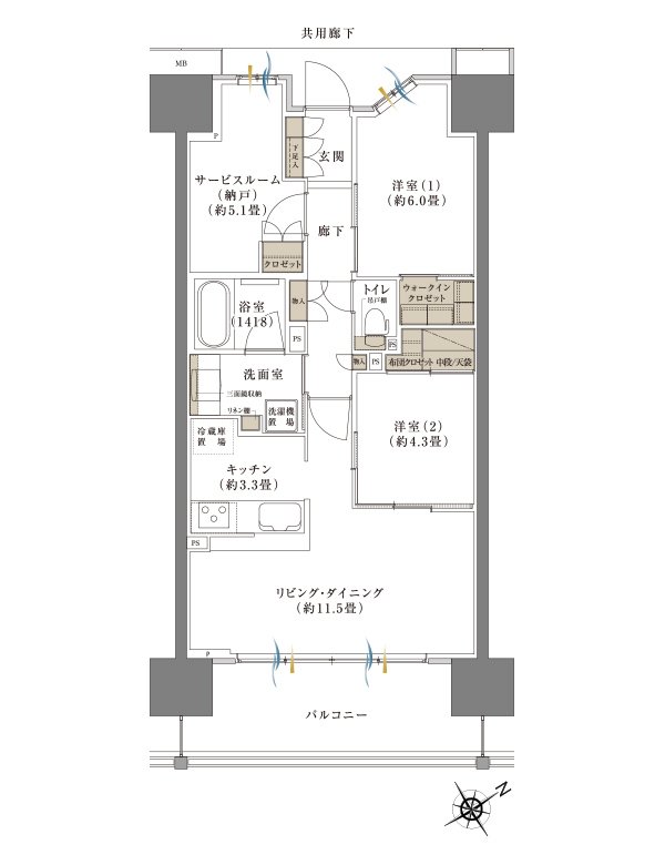
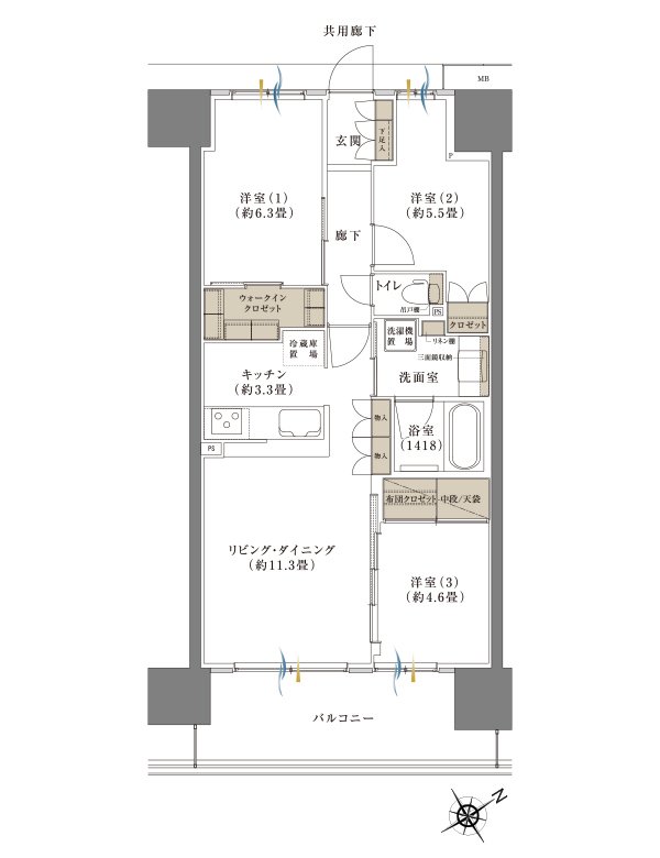
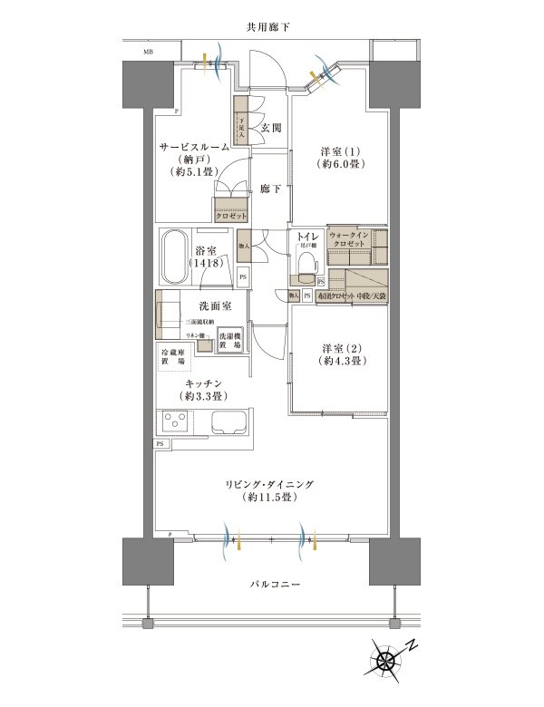
- 間取り
-
2LDK+S~3LDK
間取りを見る(6件)
- 販売スケジュール
-
登録受付期間:2026年5月16日~2026年5月23日 登録受付時間:10:00~18:00(※最終日のみ17:00〆切) 選定方法:抽選 抽選日:2026年5月23日(土)17:30~

