- 価格
-
2690万円~3540万円
月々の支払い額を見る
- 専有面積
-
69.24㎡~84.13㎡
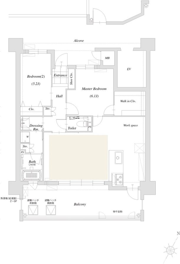
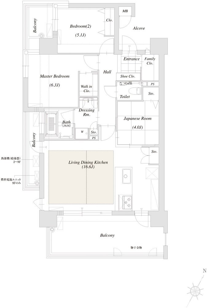
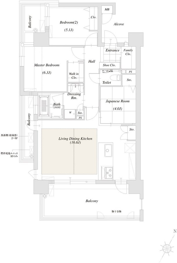
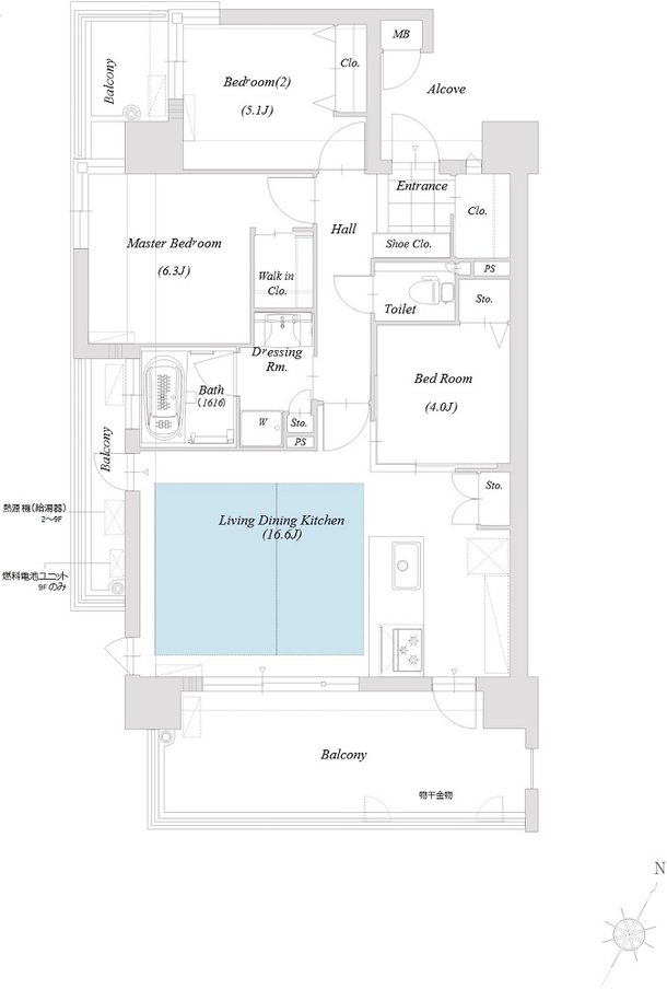
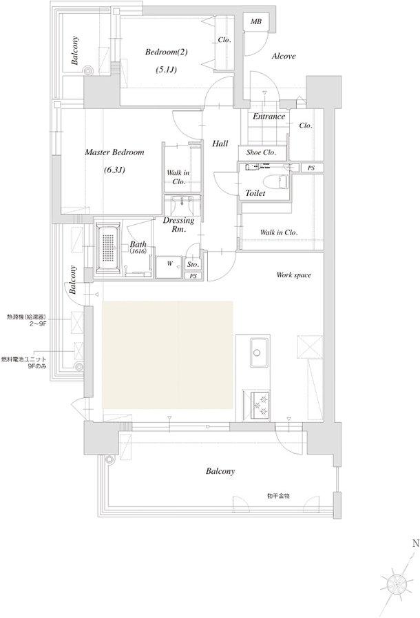
- 間取り
-
2LDK、3LDK、4LDK
間取りを見る(4件)
- 販売スケジュール
-
先着順申込受付中

