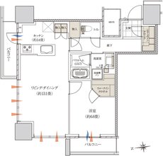
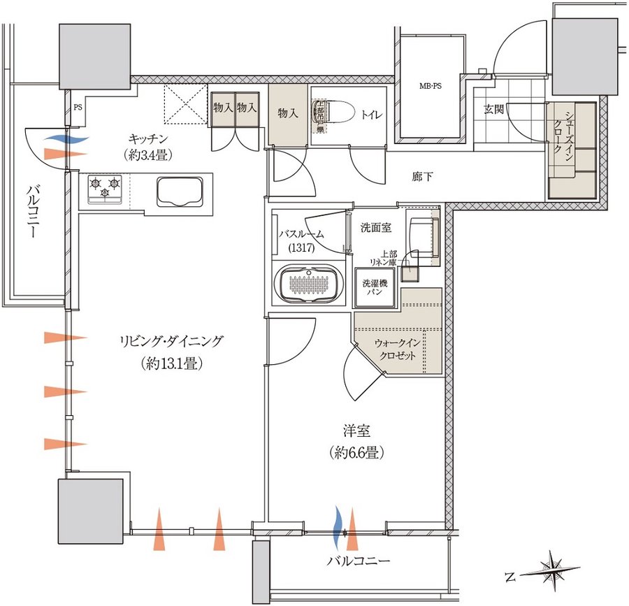
間取り
この物件の詳細情報に戻る●WIC=ウォークインクロゼット SIC=シューズインクローク N=納戸
●掲載の図面は、諸条件により多少変更になる場合があります。
●方位記号は若干誤差があります。正確な方位については設計図書でご確認ください。
●眺望等は階数・各住戸により異なり、周辺環境・眺望は将来変わる場合があります。
関連する他の物件も見てみる
特徴
- 食器洗い乾燥機(食洗機)(6)
- ウォークインクローゼット(6)
- 子どもと暮らす(6)
- 南向き(6)
- I型キッチン(6)
- 対面キッチン(6)
- 宅配ボックス(5)
- 電気自動車対応(5)
- 複層ガラス(ペアガラス)(5)
- 即入居可能(5)
- エコマンション(5)
- ペット可(4)
- 床暖房(4)
- ペット共用施設(4)
- 複数沿線利用可能(4)
- 防災設備(4)
- シューズインクローゼット(3)
- ハンズフリーキー(3)
- 広いリビング(3)
- 一人暮らし・二人暮らし向け(3)
- ラウンジ(3)
- 大規模マンション(2)
- 玄関からリビングが見えない間取り(2)
- ゲストルーム(2)
- 24時間ゴミ出し可能(2)
- ディスポーザー(2)
- 2面バルコニー(2)
- タワーマンション・高層マンション(1)
- 二重床/二重天井(1)
- 出入口が2か所以上あるキッチン(1)
- 北向き(1)
- 自走式駐車場(1)
- 耐震・免震・制振(1)
地域
間取り
価格帯
不動産会社
駅
沿線

