- 価格
-
2980万円~5190万円
月々の支払い額を見る
- 専有面積
-
58.45㎡~83.21㎡
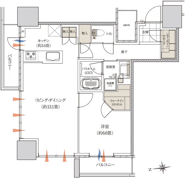
- 間取り
-
1LDK, 3LDK
間取りを見る(2件)
- 販売スケジュール
-
先着順受付中

