間取り
この物件の詳細情報に戻る〜1LDK(1R・1K・1DK含む)掲載2件
2LDK掲載2件
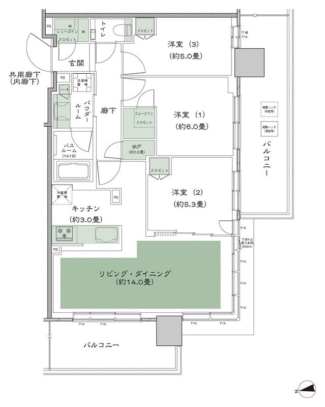
N:納戸 WIC:ウォークインクロゼット 2WIC:2ウォークインクロゼット SIC:シューズインクロゼット
※掲載の図面は、施工上の都合・改良等により多少変更する場合があります。あらかじめご了承ください。
※掲載の図面は本タイプの基本図面です。階数・列により間取りが一部異なる場合があります。詳細は図面集をご確認ください。
関連する他の物件も見てみる
特徴
- 子どもと暮らす(186)
- I型キッチン(179)
- 対面キッチン(179)
- ウォークインクローゼット(172)
- 一人暮らし・二人暮らし向け(165)
- 床暖房(157)
- 可変式間仕切り(133)
- 複数沿線利用可能(130)
- 玄関からリビングが見えない間取り(129)
- シューズインクローゼット(127)
- 食器洗い乾燥機(食洗機)(126)
- 浴室暖房換気乾燥機(112)
- 複層ガラス(ペアガラス)(99)
- 高級マンション・ハイグレードマンション(97)
- モデルルーム公開中(96)
- ペット可(94)
- ハンズフリーキー(91)
- 2面バルコニー(87)
- 駅近(駅徒歩5分以内・駅直結)(85)
- 24時間ゴミ出し可能(83)
- 南向き(82)
- エコマンション(78)
- 西向き(78)
- 防災設備(73)
- 大規模マンション(72)
- 二重床/二重天井(71)
- ディスポーザー(66)
- ラウンジ(63)
- 内廊下(61)
- ペット共用施設(55)
- 出入口が2か所以上あるキッチン(54)
- ミストサウナ(49)
- アウトフレーム工法(48)
- 電気自動車対応(45)
- 耐震・免震・制振(40)
- 南東向き(38)
- 省エネ対応(36)
- バリアフリー(34)
- 広いリビング(30)
- タワーマンション・高層マンション(29)
- パーティールーム(29)
- カスタマイズ/プランセレクト可能(25)
- 北向き(22)
- キッズルーム(21)
- コンシェルジュサービス(17)
- 天井高(2.6m以上)(15)
- オンラインで相談・見学・商談可能(15)
- 24時間有人管理(14)
- 天井カセット型エアコン(12)
- レンタサイクル(12)
- 公園・広場(11)
- カーシェア(10)
- ワイドスパン(9)
- 遮音フローリング(8)
- 浴室テレビ・オーディオ(2)
地域
間取り
価格帯
不動産会社
駅
沿線

