

| タイプ |
M2タイプ |
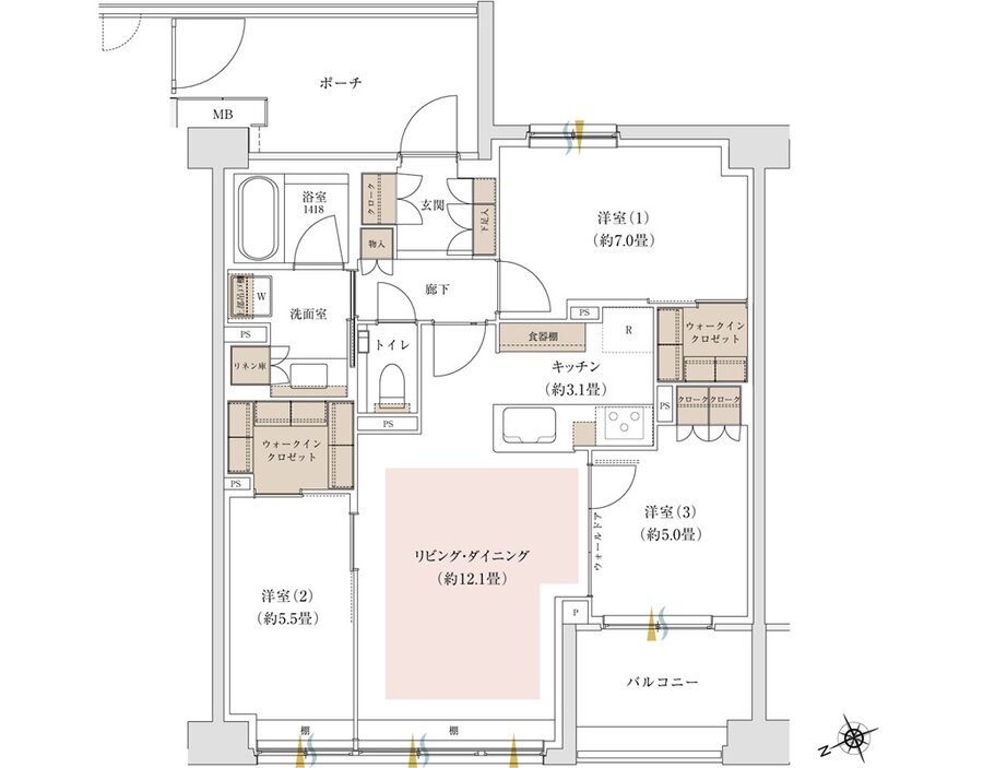
間取り |
3LDK+2WIC |
|---|---|---|---|
| 専有面積 |
75.44 ㎡ |
バルコニー面積 |
6.00 ㎡ |
| 所在地 |
東京都武蔵野市吉祥寺東町3丁目314番8他(地番) |
||
| 交通 |
JR中央線「吉祥寺」駅 徒歩12分(サブエントランスより) |
||
| 備考 |
ポーチ面積:10.19㎡ |
||