

| タイプ |
Fタイプ |
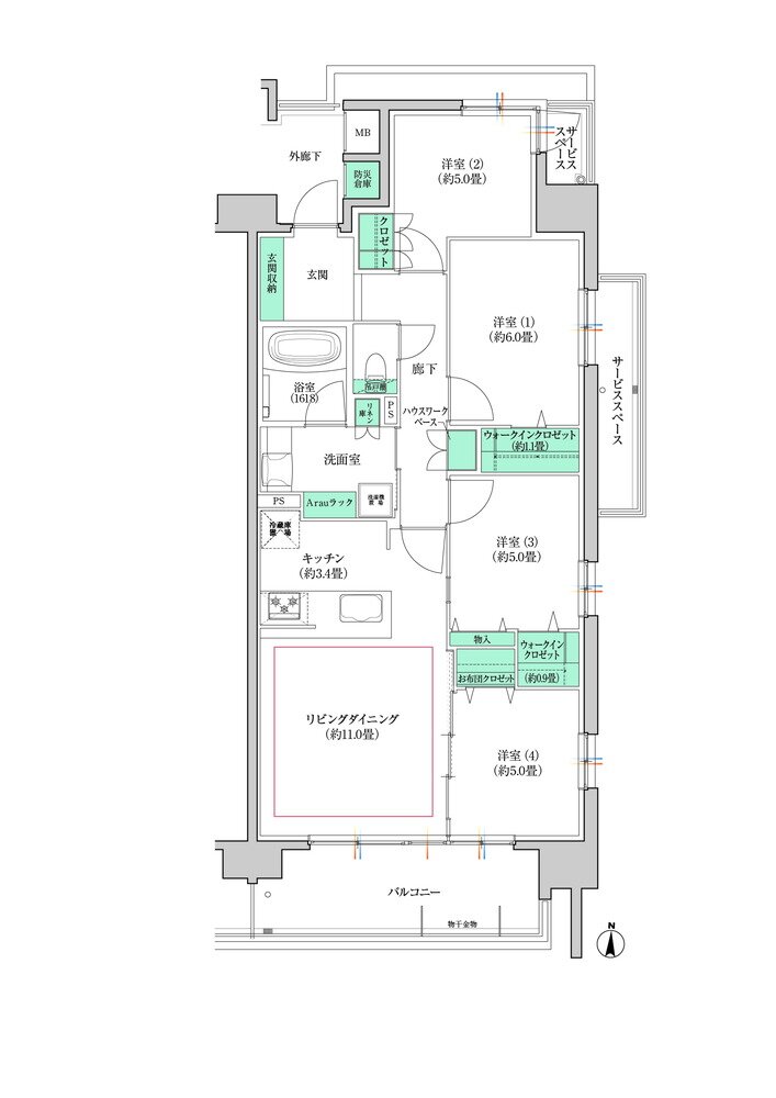
間取り |
4LDK+2WIC |
|---|---|---|---|
| 専有面積 |
84.10 ㎡ |
バルコニー面積 |
10.0 ㎡ |
| 所在地 |
愛知県岩倉市下本町下市場131番9(地番) |
||
| 交通 |
名鉄犬山線「岩倉」駅 徒歩2分 |
||
| 備考 |
※専有面積に防災倉庫0.60㎡を含む |
||