

| タイプ |
Eタイプ |
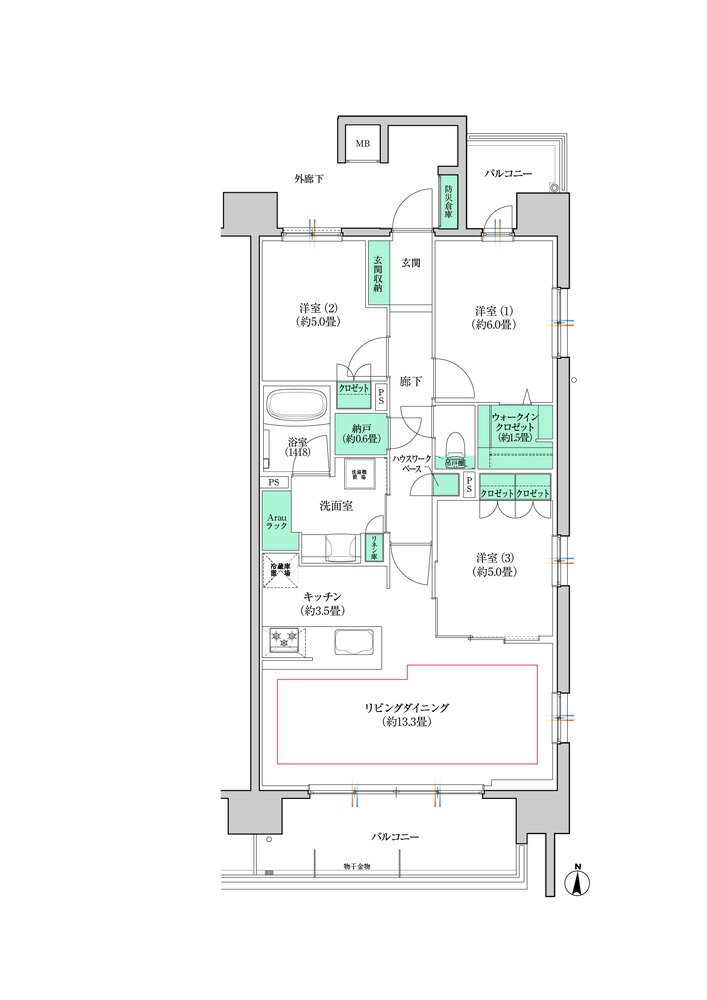
間取り |
3LDK+WIC+N |
|---|---|---|---|
| 専有面積 |
76.63 ㎡ |
バルコニー面積 |
14.3 ㎡ |
| 所在地 |
愛知県岩倉市下本町下市場131番9(地番) |
||
| 交通 |
名鉄犬山線「岩倉」駅 徒歩2分 |
||
| 備考 |
※専有面積に防災倉庫0.52㎡を含む |
||