

| タイプ |
G type メゾネット (1・2階) |
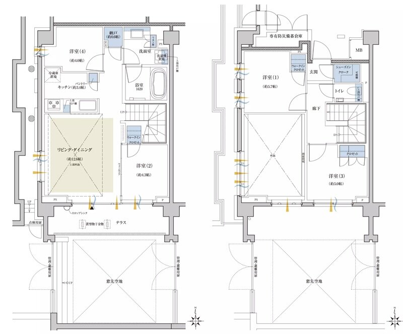
間取り |
4LDK+2WIC+SIC+N |
|---|---|---|---|
| 専有面積 |
86.73 ㎡ |
バルコニー面積 |
- |
| 所在地 |
東京都世田谷区砧4丁目259番1(地番) |
||
| 交通 |
小田急小田原線「祖師ヶ谷大蔵」駅 徒歩8分 |
||
| 備考 |
専有防災備蓄倉庫面積:2.45㎡ |
||